EasyManua.ls Logo

HP 8560A - Simplified Synthesizer Section

HP 8560A
450 pages
Print Icon
To Next Page IconTo Next Page
To Next Page IconTo Next Page
To Previous Page IconTo Previous Page
To Previous Page IconTo Previous Page
Loading...
l
ROLLER
I
PLL’S
1
I
I
I
h---e--
t
i
I
------
J304
ROLLER TEST
APPROX
-30
dBm
63 TO 105.5
MHz
MAIN ROLLER
FREO
1301
SAMPLER IF
w34
BLACK
w32
GRAY/VIOLEl
---------m
;A15
RF ASSEMBLY
-15 TO 0
dBm
/
63 TO 105.5 MHz
WHEN LOCKED, SAME
AS MAIN ROLLER
FREO
10 MHz
APPROX
OdBm
I
I
OFFSET
PLL
w37
I
GRAY/GREEN
I
------
600
MHz
APPROX 0
dBm
I
1
TO Al3
SECOND
CONVERTER
A15AZJl
u
I
t
I
10
MHz
I
TCXO I
I
4
-I
+(DE:FdTED
I
I
I OPT 003) ,
SK1111
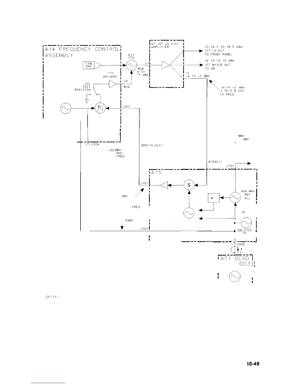
Figure 10-l 1. Simplified Synthesizer Section
A
----
---
J
J305
Q
w49
(OPT 003)
iA21-
oc;tOl
‘(OPT
003);
I
I
I
I
I
h
e
----J
Synthesizer Section lo-49

Table of Contents

Related product manuals