EasyManua.ls Logo

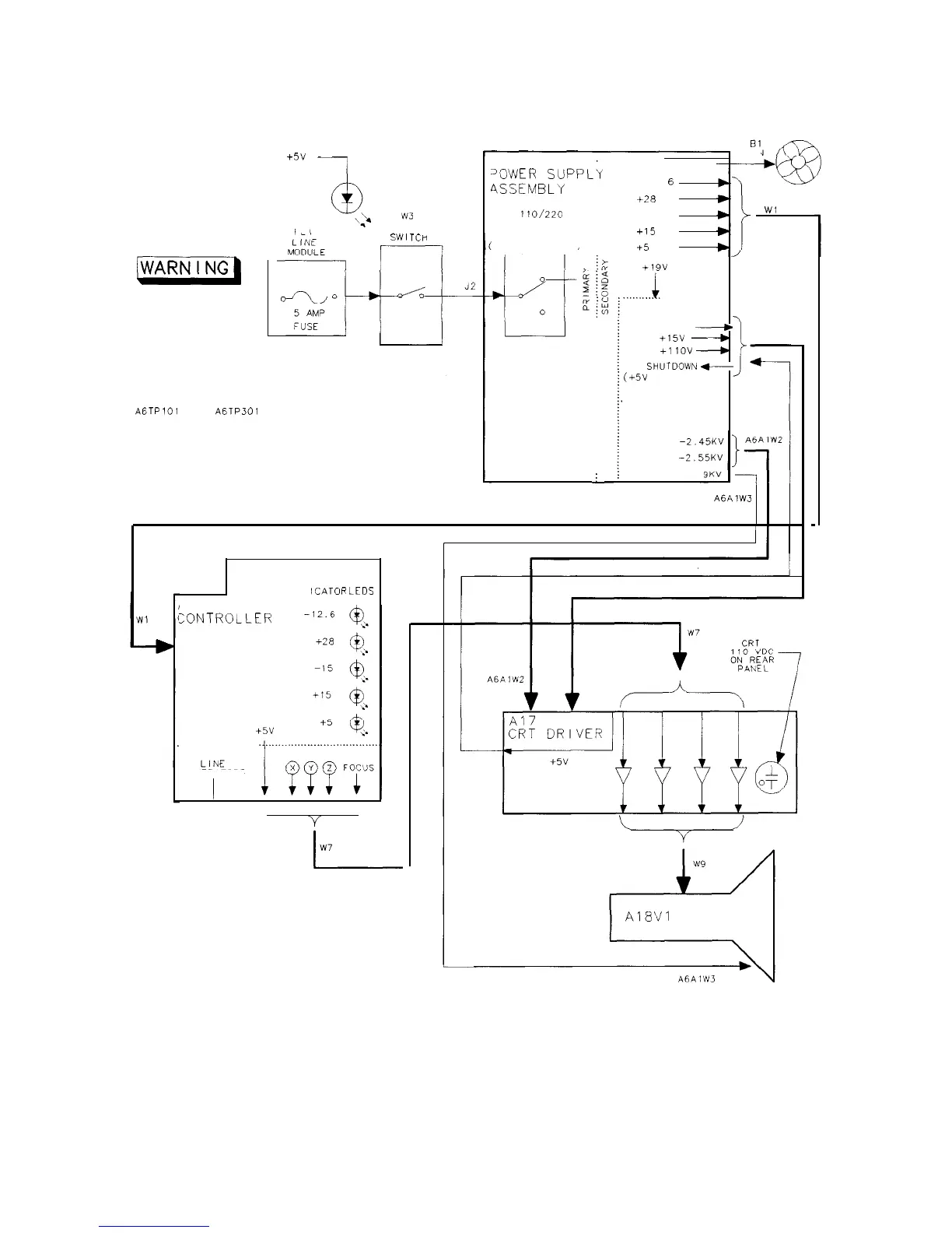
HP 8560A - L. Simplified Section Block Diagram

HP 8560A
450 pages
Print Icon
To Next Page IconTo Next Page
To Next Page IconTo Next Page
To Previous Page IconTo Previous Page
To Previous Page IconTo Previous Page
Loading...
JWARNING(
WHEN
TROUBLESHOOTING
THE POWER SUPPLY
USE AN
ISOLATION
TRANSFORMER
AND CONNECT
AGTPlOi
TO
A6TP301
FRONT PANEL LED
+5v
7
LINE
^,.,,
_r
FL4
>WI
ILH
I
~
FAN
A6
‘OWER
SUPPLi’
-12 6
4SSEMBLY
110/220
VOLTAGE
SELECTOR
ON REAR PANEL)
i
+28
-15
Wl
+15
+5
+19v
CRT SUPPLY
-15v
__)
+15v
__)
it
1ov
4
HV
SHUTDOWNt-
(+5V
= HV ON)
HIGH VOLTAGE
MODULE
AbAlW3
POWER SUPPLY
I ND
ICATOR
LEDS
42
IONTROLLER
. . . . . . . . . . . . . . .
GENERATORS
‘I
I
Al8Vl
CRT
SK1 120
Figure 12-l. Simplified Section Block Diagram
12-2 Display/Power Supply Section

Table of Contents

Related product manuals