EasyManua.ls Logo

Omron RX Series - Page 47

Omron RX Series
688 pages
To Next Page IconTo Next Page
To Next Page IconTo Next Page
To Previous Page IconTo Previous Page
To Previous Page IconTo Previous Page
Loading...
1 - 17
1 Overview
High-function General-purpose Inverter 3G3RX-V1 User’s Manual (I578-E1)
1-3 Specifications
1
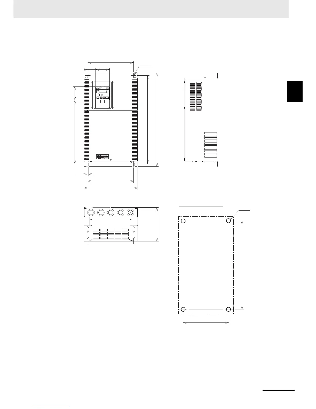
1-3-2 External Dimensions
3G3RX-A2300-V1/A4300-V1
368
79
265
310
10
510
540
2-φ10
195
45 80
265
265
510
Mounting dimensions
4-M8

Table of Contents

Related product manuals