EasyManua.ls Logo

Frontier LP7500 - Paper Supply Unit Operation (the Paper Advance Length Is between 165.6 MM and 392.5 MM)

Frontier LP7500
904 pages
Print Icon
To Next Page IconTo Next Page
To Next Page IconTo Next Page
To Previous Page IconTo Previous Page
To Previous Page IconTo Previous Page
Loading...
Paper advance operation
1/5
5. Operation sequence
55210
55210
Paper supply unit operation (the paper advance length is between 165.6
mm and 392.5 mm)
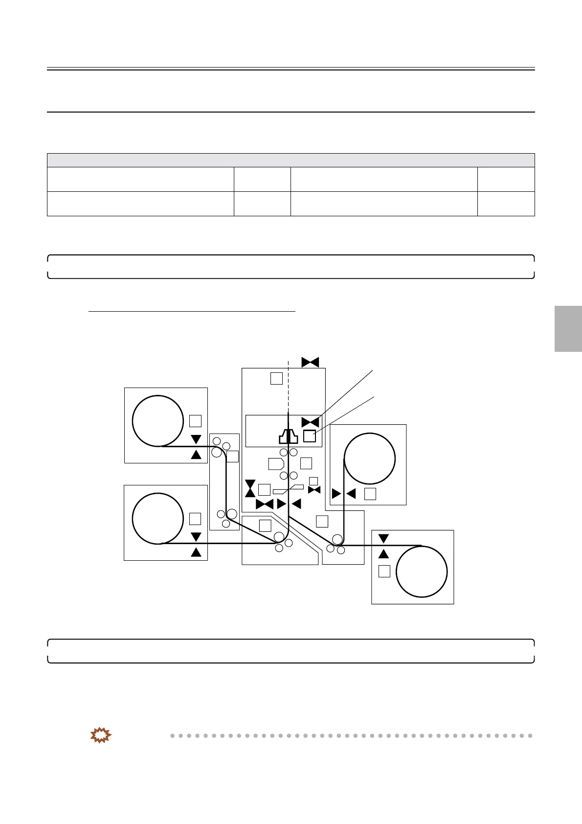
This section explains how arm unit 1 of the paper supply unit advances the loaded paper to the exposure advance unit.
The advance operation (paper supply unit operation) varies depending on the paper advance length.
!
!!
! When the paper advance length is between 165.6 mm and 392.5 mm
1. Arm unit 1 pressures the loaded paper.
Paper hold motor: ON (pressured)/OFF
When the paper hold sensor does not turn dark:
No. 06101-00001
Paper Hold Motor operation error.
2. Arm unit 1 and the paper are advanced for the paper length.
Paper supply arm motors (right and left): ON (forward)/OFF
Paper magazine motor A/A2/B/C: ON
Paper supply motor A/A2/B/C: ON
Paper advance motor 1: ON
IMPORTANT
Arm unit 1 advances the paper at the same speed of loading.
Reference
When the paper advance length is 165.5 mm
or less
55200 When the paper advance length is between
395.6 mm and 466.5 mm
55220
When the paper advance length is between
165.6 mm and 392.5 mm
55210 When the paper advance length is 466.6 mm
or more
55230
Paper hold motor
Note: The thick solid line indicates the paper.
Paper hold sensor
G068494
Distributed by: minilablaser.com

Table of Contents

Related product manuals