EasyManua.ls Logo

Bosch Rexroth ActiveMover - Page 87

Bosch Rexroth ActiveMover
188 pages
Print Icon
To Next Page IconTo Next Page
To Next Page IconTo Next Page
To Previous Page IconTo Previous Page
To Previous Page IconTo Previous Page
Loading...
Installation 87/188
3 842 564 874/2021-04, MIT: ActiveMover, Bosch Rexroth AG
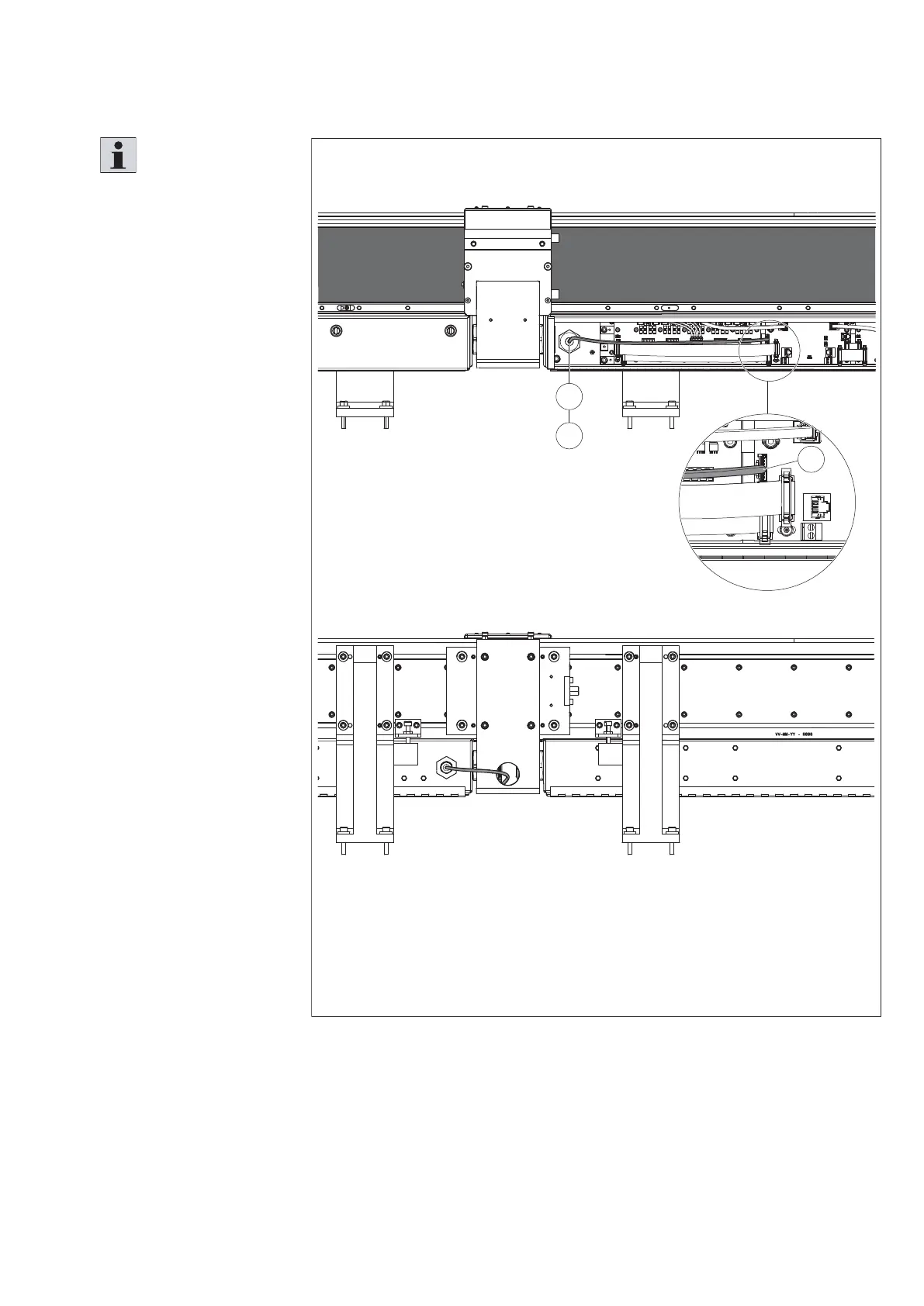
Fig. 63:
Y
X
1
2
3
Connecting the IR reading head ID system
Please note:
The IR reading head
connection cable must be
protected from damage,
e.g. by means of fastening
using cable ties.
X:
Front view
Y:
Rear view
1. Remove the protective
cap of the cable entry
in the rear wall of the
electronics box to the
right of the IR reading
head.
2. Guide the IR reading
head connection cable
into the electronics box
and mount the cable
gland.
3. Connect the connection
cable of the IR reading
head to the printed
circuit board (gateway).

Table of Contents

Related product manuals