EasyManua.ls Logo

Mazda 6 2002 - Page 433

Mazda 6 2002
1187 pages
Print Icon
To Next Page IconTo Next Page
To Next Page IconTo Next Page
To Previous Page IconTo Previous Page
To Previous Page IconTo Previous Page
Loading...
ON-BOARD DIAGNOSTIC
K59
K
Diagnostic procedure
STEP INSPECTION ACTION
1 VERIFY FREEZE FRAME DATA HAS BEEN
RECORDED
Has FREEZE FRAME PID DATA been
recorded?
Yes Go to next step.
No Record FREEZE FRAME PID DATA on repair order, then
go to next step.
2 VERIFY RELATED REPAIR INFORMATION
AVAILABILITY
Check for related Service Bulletins availability.
Is any related repair information available?
Yes Perform repair or diagnosis according to available repair
information.
If vehicle is not repaired, go to next step.
No Go to next step.
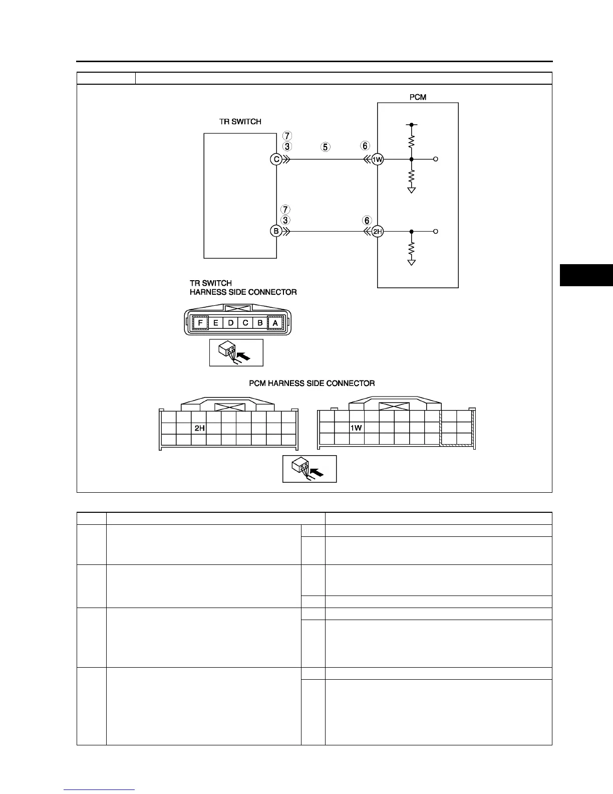
3 INSPECT TR SWITCH CONNECTOR
Turn ignition key OFF.
Disconnect TR switch connector.
Inspect for bent terminals of TR switch
terminals B and C (part-side).
Are TR switch terminals okay?
Yes Go to next step.
No Repair terminals or replace TR switch, then go to Step 7.
(See K15 TRANSAXLE RANGE (TR) SWITCH
REMOVAL/INSTALLATION.)
4 INSPECT TR SWITCH
Turn ignition key to OFF.
Disconnect TR switch connector.
Inspect for resistance between TR switch
terminals B and C (part-side).
Is resistance okay?
(See K14 TRANSAXLE RANGE (TR) SWITCH
INSPECTION.)
Yes Go to next step.
No Adjust TR switch, then go to Step 7.
(See K18 TRANSAXLE RANGE (TR) SWITCH
ADJUSTMENT.)
DTC P0707 Transaxle range (TR) switch circuit low input

Table of Contents

Related product manuals