EasyManua.ls Logo

Mazda 6 2002 - Dtc P0712

Mazda 6 2002
1187 pages
Print Icon
To Next Page IconTo Next Page
To Next Page IconTo Next Page
To Previous Page IconTo Previous Page
To Previous Page IconTo Previous Page
Loading...
K64
ON-BOARD DIAGNOSTIC
End Of Sie
DTC P0712
A6E567001030W10
Diagnostic procedure
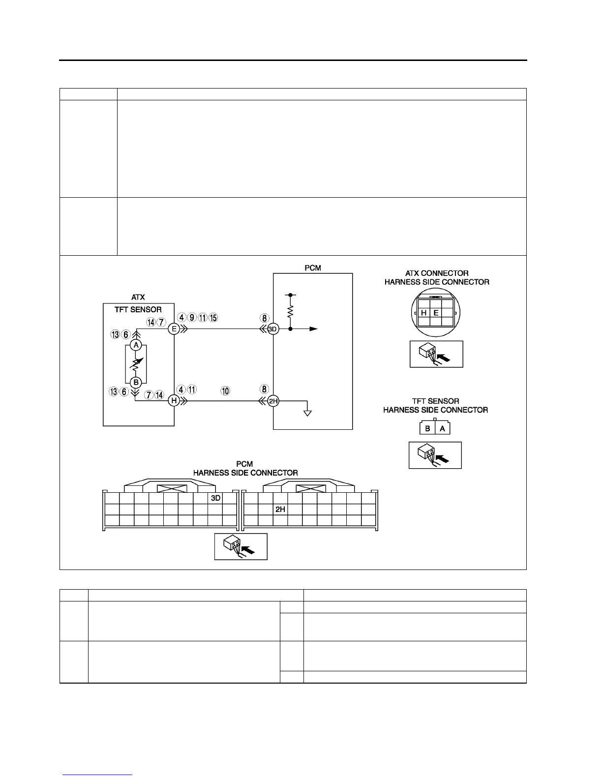
DTC P0712 Transaxle fluid temperature (TFT) sensor circuit malfunction (short to ground)
DETECTION
CONDITION
If PCM detects either of following conditions for 150 seconds or more, PCM determines that TFT sensor
circuit has a malfunction.
TFT sensor voltage is 0.06 V or below and vehicle speed 20 km/h {12 mph} or above.
Diagnostic support note:
This is a continuous monitor (CCM).
MIL illuminates if PCM detects the above malfunction conditions during first drive cycle.
PENDING CODE is not available.
FREEZE FRAME DATA is available.
HOLD indicator light flashes.
DTC is stored in the PCM memory.
POSSIBLE
CAUSE
TFT sensor malfunction
Short to ground between TFT sensor terminal A and ATX connector terminal E
Short to ground between TFT sensor terminal B and ATX connector terminal H
Short to ground between ATX connector terminal E and PCM terminal 3D
Damaged connectors between TFT sensor and PCM
PCM malfunction
STEP INSPECTION ACTION
1 VERIFY FREEZE FRAME DATA HAS BEEN
RECORDED
Has FREEZE FRAME PID DATA been
recorded?
Yes Go to next step.
No Record FREEZE FRAME PID DATA on repair order, then
go to next step.
2 VERIFY RELATED REPAIR INFORMATION
AVAILABILITY
Check for related Service Bulletins availability.
Is any related repair information available?
Yes Perform repair or diagnosis according to available repair
information.
If vehicle is not repaired, go to next step.
No Go to next step.

Table of Contents

Related product manuals