EasyManua.ls Logo

Mazda 6 2002 - Steering Wheel and Column Removal;Installation

Mazda 6 2002
1187 pages
Print Icon
To Next Page IconTo Next Page
To Next Page IconTo Next Page
To Previous Page IconTo Previous Page
To Previous Page IconTo Previous Page
Loading...
ENGINE SPEED SENSING POWER STEERING
N7
N
STEERING WHEEL AND COLUMN REMOVAL/INSTALLATION
A6E661432010W02
Warning
Handling the air bag module improperly can accidentally deploy the air bag module, which may
seriously injure you. Read AIR BAG SYSTEM WARNINGS before handling the air bag module. (See
T117 SERVICE WARNINGS.)
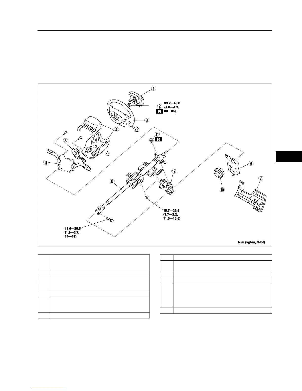
1. Remove in the order indicated in the table.
2. Install in the reverse order of removal.
3.
.
A6E0612W017
1 Air bag module
(See T120 DRIVER-SIDE AIR BAG MODULE
REMOVAL/INSTALLATION)
2 Locknut
3 Steering wheel
(See N8 Steering Wheel Removal Note)
(See N8 Steering Wheel Installation Note)
4 Column cover
5 Clock spring
(See T125 CLOCK SPRING REMOVAL/
INSTALLATION)
6 Combination switch
7 Lower panel
8 Steering shaft
(See N8 Steering Shaft Installation Note)
9 Joint cover
10 Dust cover
11 Steering lock mounting bolts
(See N8 Steering Lock Mounting Bolts Removal
Note)
(See N8 Steering Lock Mounting Bolts Installation
Note)
12 Steering lock component

Table of Contents

Related product manuals