EasyManua.ls Logo

Mazda Mazda6 - Page 99

Mazda Mazda6
909 pages
Print Icon
To Next Page IconTo Next Page
To Next Page IconTo Next Page
To Previous Page IconTo Previous Page
To Previous Page IconTo Previous Page
Loading...
FUEL SYSTEM
F111
F1
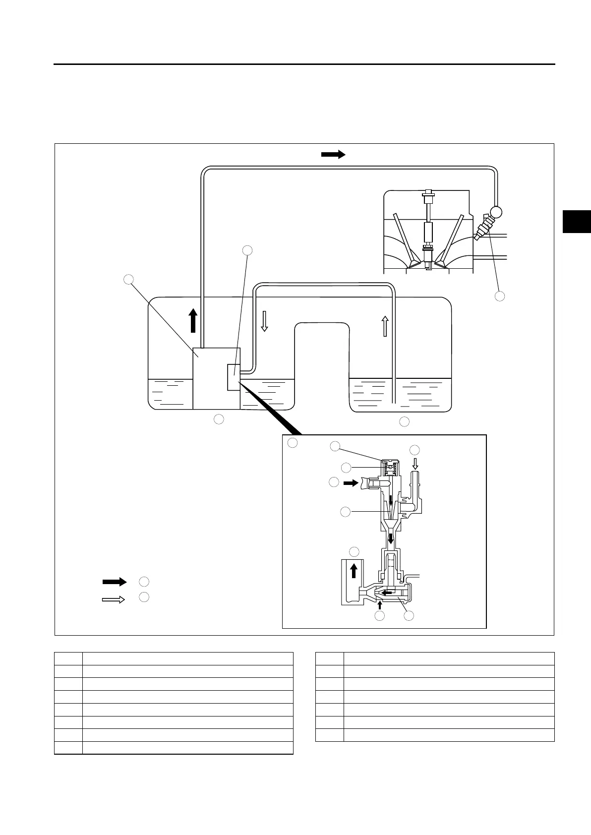
Operation
The fuel jet pump (venturi) is installed in the return passage from the pressure regulator, and fuel in the fuel
tank is pumped to the left side from the right side using the vacuum generated in the passage.
When the return fuel pressure exceeds a specified value, the relief valve is opened. The relief valve delivers the
return fuel directly to the fuel tank. In this way, pressure of the return fuel passing through the fuel jet pump is
kept constantly below the specified value.
.
End Of Sie
9
8
7
5
4
3
10
14
13
11
12
6
1
2
:
:
2
15
A6E39122003
1 Fuel pump unit
2 Fuel pump (transfer)
3 Fuel injector
4 Fuel tank (left side)
5 Fuel tank (right side)
6 Relief valve
7 Discharge outlet
8 From pressure regulator
9 From fuel tank (right side)
10 Fuel jet pump
11 To fuel tank (left side)
12 Fuel jet pump
13 From fuel tank (left side)
14 Fuel flow
15 Pumped fuel flow

Table of Contents

Related product manuals