EasyManua.ls Logo

Mazda Mazda6 - Dtc P0223

Mazda Mazda6
909 pages
Print Icon
To Next Page IconTo Next Page
To Next Page IconTo Next Page
To Previous Page IconTo Previous Page
To Previous Page IconTo Previous Page
Loading...
F2134
ON-BOARD DIAGNOSTIC
DTC P0223
A6E407001082227
Diagnostic procedure
DTC P0223 Accelerator position sensor No.2 circuit high input
DETECTION
CONDITION
PCM monitors input voltage from accelerator position sensor No.2 while engine is running. If input voltage
from accelerator position sensor No.2 is above 4.7 V, PCM determines accelerator position sensor No.2
circuit high input.
POSSIBLE
CAUSE
Accelerator position sensor No.2 malfunction
Connector or terminal malfunction
Accelerator position sensor No.2 power and signal circuits short each other
Open circuit in wiring between accelerator position sensor terminal C and PCM terminal 88
Open circuit in wiring between accelerator position sensor terminal D and PCM terminal 91
PCM malfunction
STEP INSPECTION ACTION
1 PERFORM DTC CONFIRMATION PROCEDURE
Perform DTC Confirmation Procedure.
(See F285 DTC CONFIRMATION
PROCEDURE)
Is same DTC present during KOEO or KOER
self-test?
Yes Go to next step.
No Intermittent concern exists. Go to Intermittent Concern
Troubleshooting.
(See F2227 INTERMITTENT CONCERN
TROUBLESHOOTING)
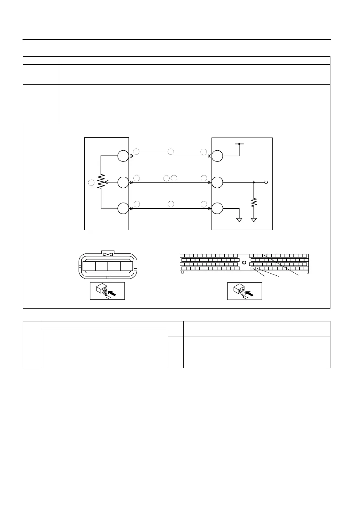
A
C
D
90
88
91
ACCELERATOR POSITION SENSOR NO.2
91
90
10
PCM
A
BCD
6
2
5
4
3
2
2
5
5
3
6
ACCELERATOR POSITION SENSOR
HARNESS SIDE CONNECTOR
PCM
HARNESS SIDE CONNECTOR

Table of Contents

Related product manuals