EasyManua.ls Logo

Belanger FreeStyler - Page 93

Belanger FreeStyler
321 pages
Print Icon
To Next Page IconTo Next Page
To Next Page IconTo Next Page
To Previous Page IconTo Previous Page
To Previous Page IconTo Previous Page
Loading...
INSTALLATION AND STARTUP
1MANUL220 Belanger, Inc.® * PO BOX 5470. * Northville, MI 48167-5470 * Ph (248) 349-7010 * Fax (248) 380-9681 4-39
Chapter 4 Frame and Carriage Assembly
Optional Deluxe Boom
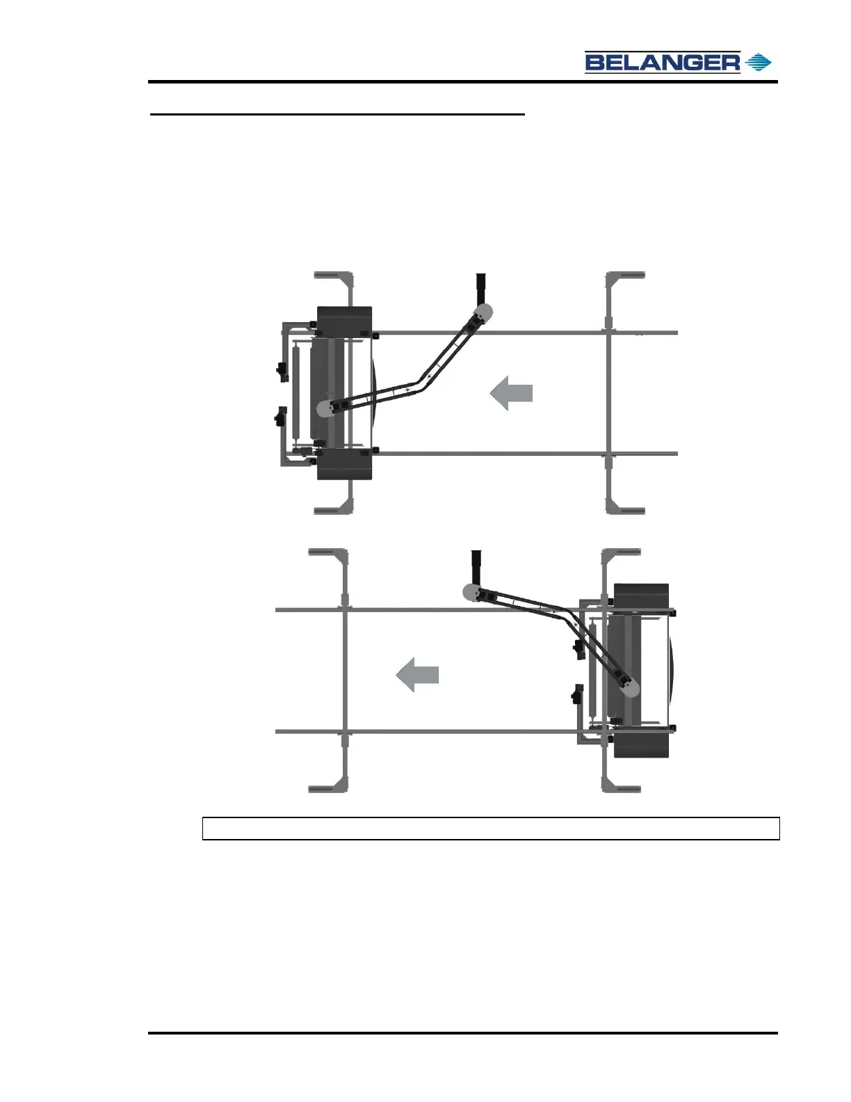
Connecting the Boom
The carriage can be rolled manually at this time if the drive train has been disengaged. If the
drive train has not been disengaged, follow the “Electrical movement” steps covered in Chapter
22 of this manual.
1) Move the carriage to the exit end hard stop to ensure the boom does not completely straighten.
2) Move carriage to the entrance end hard stop to ensure that the boom does not completely straighten.
Note: The machine MUST be in this location to begin routing the utilities.

Table of Contents

Related product manuals