EasyManua.ls Logo

Cisco ASR 1002 - Attaching Cable Retention Bracket on AC Power Supply

Cisco ASR 1002
702 pages
Print Icon
To Next Page IconTo Next Page
To Next Page IconTo Next Page
To Previous Page IconTo Previous Page
To Previous Page IconTo Previous Page
Loading...
To reduce the chance of interference, avoid crossing high-power lines with any interface cables.
Verify all cabling limitations (particularly distance) before powering on the system.
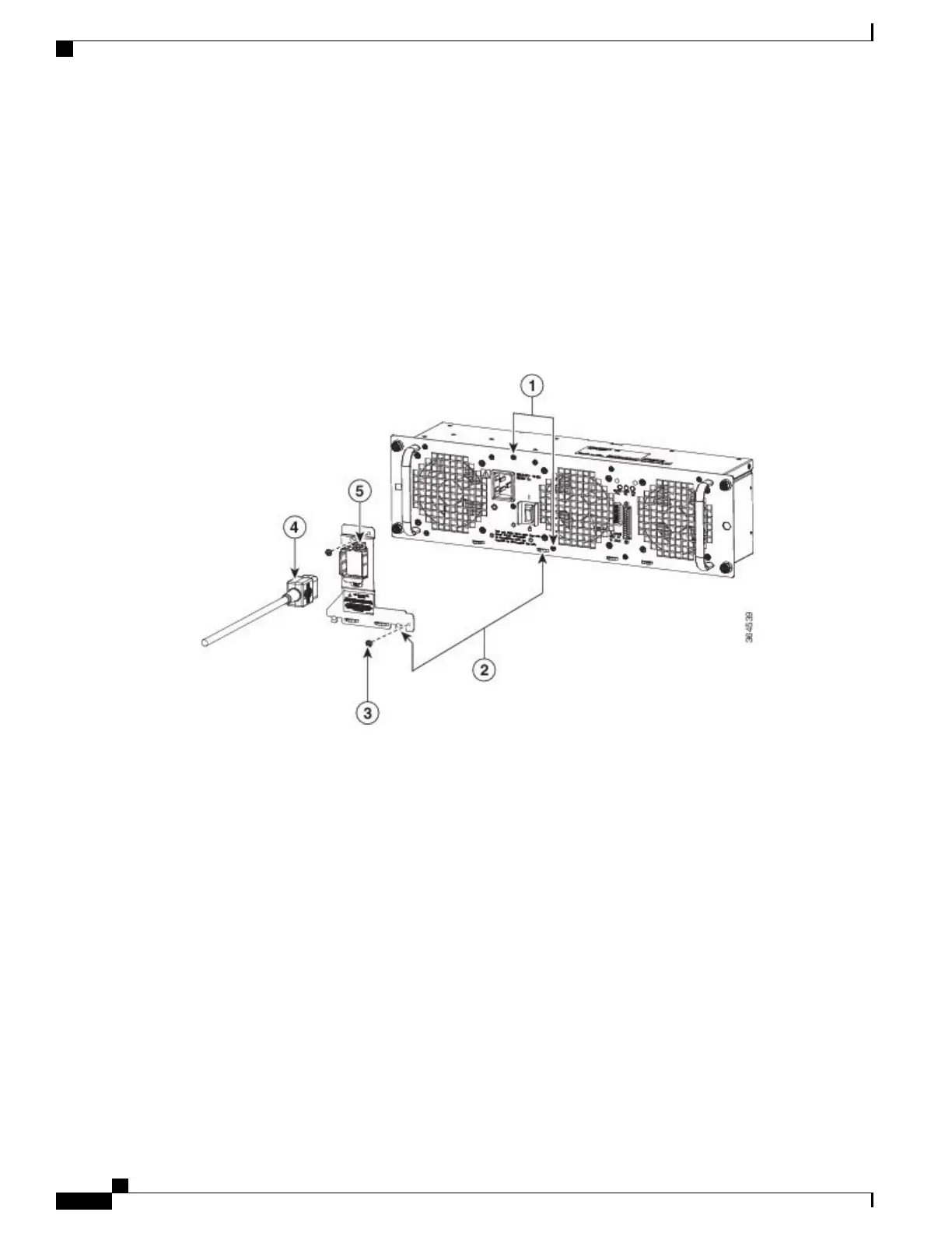
Attaching Cable Retention Bracket on AC Power Supply
This section explains how to attach the cable retention bracket on AC power supply of the chassis.
The following image shows the cable retention bracket attaching to the AC power supply.
Figure 195: Cable Retention Bracket Attaching to the AC Power Supply
SUMMARY STEPS
1.
Remove the two M3X5mm screws and discard.
2.
Install AC cord retainer by inserting tabs into lance features on panel.
3.
Secure AC cord retainer with two M3X8mm screws included in kit.
4.
Connect AC power cord.
5.
Secure AC cord by tightening retainer screw.
Cisco ASR 1000 Series Router Hardware Installation Guide
404
Cisco ASR 1013 Router Overview and Installation
Attaching Cable Retention Bracket on AC Power Supply

Table of Contents

Other manuals for Cisco ASR 1002

Related product manuals