EasyManua.ls Logo

Cisco ASR 1002 - Page 536

Cisco ASR 1002
702 pages
Print Icon
To Next Page IconTo Next Page
To Next Page IconTo Next Page
To Previous Page IconTo Previous Page
To Previous Page IconTo Previous Page
Loading...
Back up data that you want to save before replacing a eUSB device.
Note that the component is keyed and slotted for easier connection.
To ensure the DIMMs are functioning properly, all four DIMMs must be replaced at the same time and
must be of the same manufacturer and part number (since vendors may have multiple versions of the
DIMM).
The following table shows the slots that are supported for inserting memory DIMMs in Cisco ASR1000-RP2
Table 91: Cisco ASR1000-RP2 Supported Slots for Inserting Memory DIMMs
Slot 3Slot 2Slot 1Slot 0Memory PID Option
2 GB module2 GB module2 GB module2 GB moduleM-ASR1K-RP2-8GB=
4 GB Module4 GB Module4 GB Module4 GB ModuleM-ASR1K-RP2-16GB=
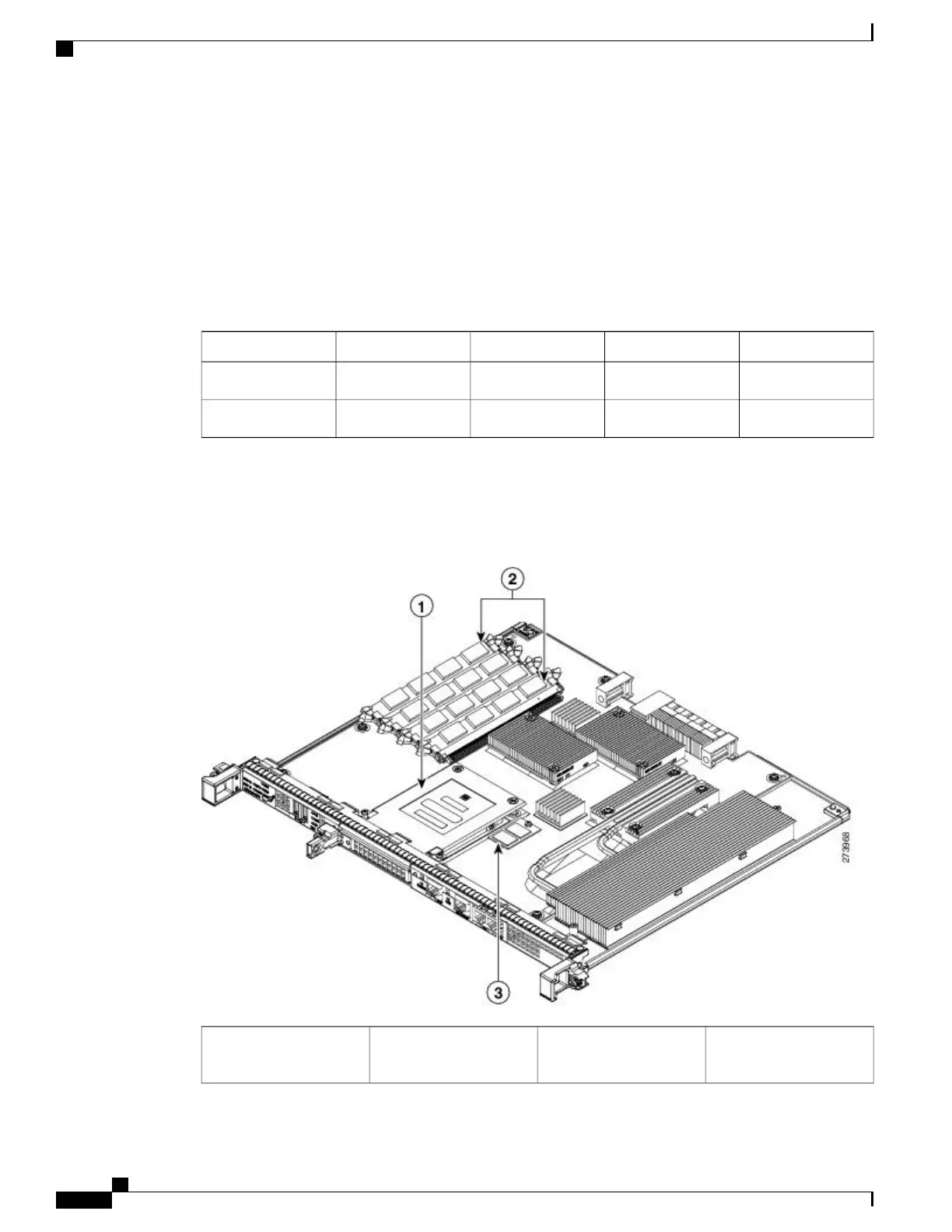
This section describes how to remove and then replace the Cisco ASR1000-RP2 module DIMMs (see the
following figure).
Figure 242: Cisco ASR1000-RP2 Module Internal Component Location
Cisco ASR1000-RP2
internal eUSB device
3Internal hard drive
location
1
Cisco ASR 1000 Series Router Hardware Installation Guide
502
Removing and Replacing FRUs from the Cisco ASR 1000 Series Routers
Removing and Replacing the Cisco ASR1000-RP2 DIMM Memory Modules

Table of Contents

Other manuals for Cisco ASR 1002

Related product manuals