EasyManua.ls Logo

IAI TTA Series - Four-Axis: X & Y-Axes 500 Mm Stroke, Z-Axis 100 Mm;150 Mm Stroke

IAI TTA Series
378 pages
Print Icon
To Next Page IconTo Next Page
To Next Page IconTo Next Page
To Previous Page IconTo Previous Page
To Previous Page IconTo Previous Page
Loading...
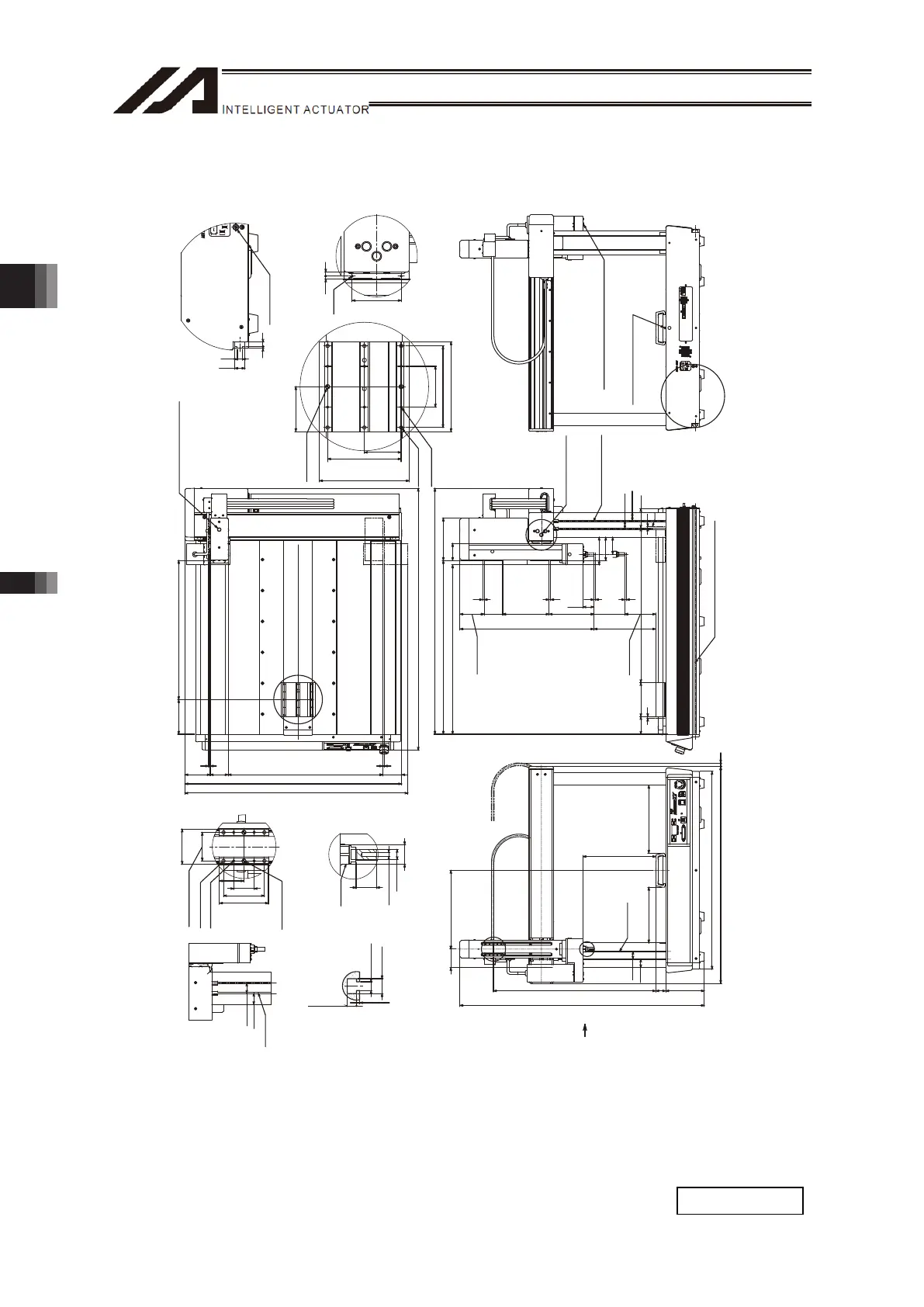
Chapter 9 External Dimensions9.1 Servo Motor Type, Pulse Motor Type (Battery-less Absolute Specication)
314
[12] Four-Axis: X & Y-Axes 500mm Stroke, Z-Axis 100mm/150mm Stroke
4.3
7.3
1.5
4.5
(12)
125
32
27.5
25
Zst=100:475
Zst=150:525
790.5
60 255
640
701
235.5
180 220
U
W
55.5
5
Zst: 100
Zst:150
5 5
Zst:100
Zst:150
5
75.5
Zst=100:100
Zst=150:50
145
5
Xst: 500 63
5
25
27.5
89.5
60
Zst=100:128.5
Zst=150:
78.5
55
137.2562
795.5
35.5
(200)
433.5
57 110
548
ME
MESE
Y
V
55
Yst: 50061
(721.2)
58 82
(701)
112 450
846.8
ME
SE
ME
S
43
35
30
25
50
60
2-φ 5
27.5
25
55
45
90
110
50
100
110
2-φ 5
3.5 5
60
16.5
8
73
20
φ10 h7
19
Detail Diagram W
(Detail of R-axis tip end)
R-axis Datum
Surface
4-M5 Depth 7
4-M4 Depth 7
(Reamer Pitch
Tolerance ±0.02)
H7 Depth 5
M5 Depth 10
X View
(T-Groove on Side of Main Unit)
T-Groove ×2
Profile of T-Groove
on Frame
Detail Diagram U
(Detail of Z-Axis Slider)
X View
T-Groove ×2
HOME
HOME
HOME:Z-Slider
ME:
Z-Slider
ME:
Z-Slider
SE:
Z-Slider
ME:Spline
ME:Spline
HOME:Spline
SE:Spline
Dial for Y-Slider
Position Tuning
T-Goove (Same Profile on Opposite Side)
(Same Profile on Opposite
Side of Frame)
T-Groove ×2
Dial for X-Slider Position Tuning
Volume for Position Tuning in Turning Direction
SE: Stroke end
ME: Mechanical end
Detail Diagram V (Grounding Screw)
M4 for Grounding
2-M3
Depth 5
Detail Diagram Y (Side Surface of Y-Axis Slider)
(Same Profile on Opposite Side)
Detail Diagram S (Detail of X-Axis Slider)
6-M5 Depth 7
6-M4 Depth 7
(Reamer Pitch
Tolerance ±0.02)
H7 Depth 5
(R-axis on the Other Side)
Dial for Z-Slider Position Tuning
Mass: 49.3kg

Table of Contents