EasyManua.ls Logo

IAI TTA Series - Three-Axis: X- Axis 500 Mm Stroke, Y-Axis 450 Mm Stroke, Z-Axis 100 Mm;150 Mm Stroke

IAI TTA Series
378 pages
Print Icon
To Next Page IconTo Next Page
To Next Page IconTo Next Page
To Previous Page IconTo Previous Page
To Previous Page IconTo Previous Page
Loading...
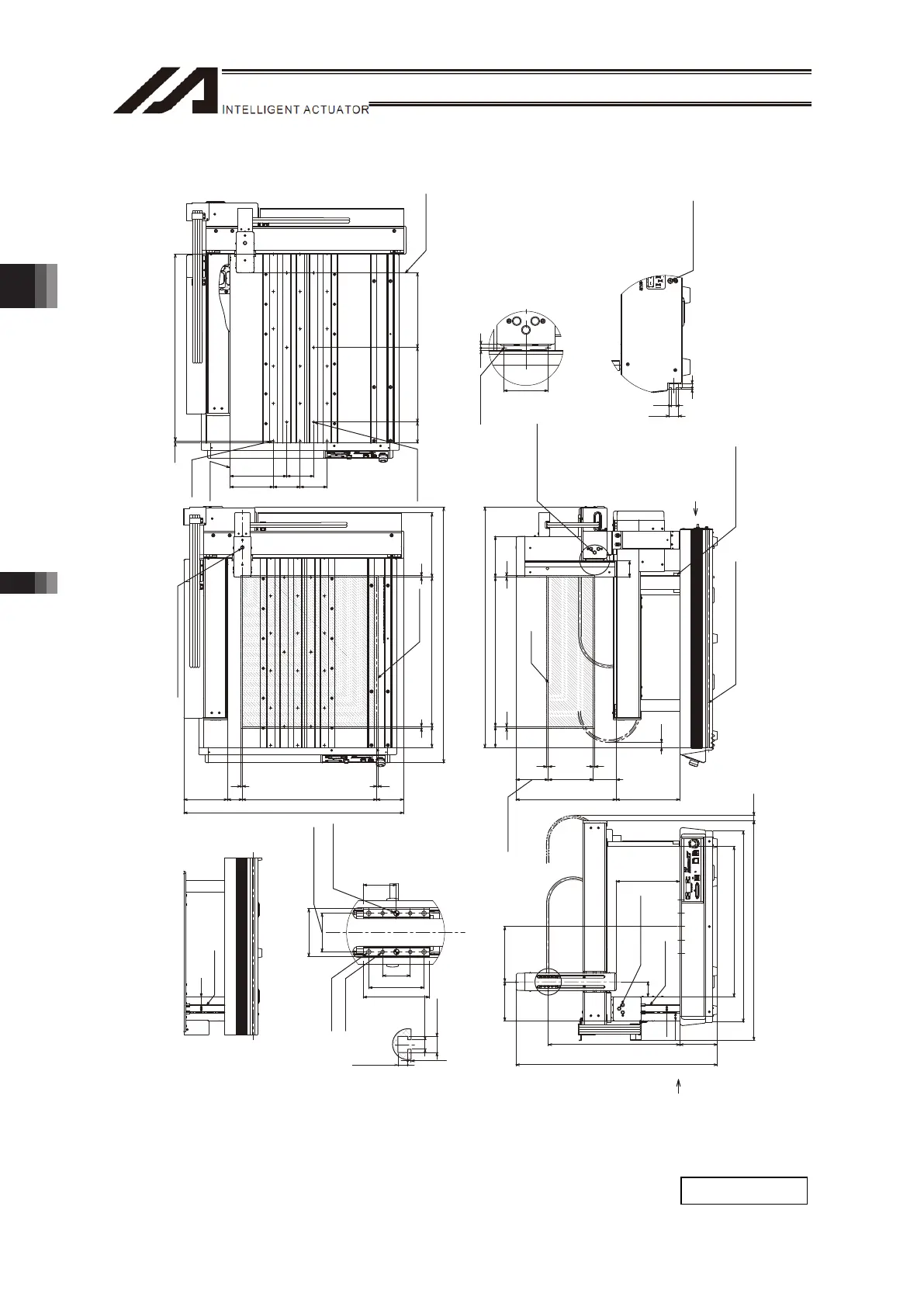
Chapter 9 External Dimensions9.1 Servo Motor Type, Pulse Motor Type (Battery-less Absolute Specication)
322
[8] Three-Axis: X- Axis 500mm Stroke, Y-Axis 450mm Stroke, Z-Axis 100mm/150mm Stroke
4.3
7.3
1.5
4.5
Xst: 500
Zst:100
Zst:
150
5
Zst=100:158.5
Zst=150:108.5
5
77
70
(17)
5 5
137.2
335.5
(213)
805
55
ME
SE
ME
ME SE ME
Y
27.5
25
185
(16.8)
736
640
131
674.5
126
Zst=100:390
Zst=150:440
503
213
50
U
Yst: 450
Xst: 500
90
5
70
5 5
5
215.5
50
(736)
854.7
146
SEME
ME
ME
SE
ME
25
50
60
35
43
30
27.5
25
145.59090
190.590
7.5 5x125p=625
70 250 250
3 7
8
16.5
60
3.5 5
2-φ5 H7 Depth 5
(Reamer Pitch
Tolerance ±0.02)
T-Groove ×2
4-M5 Depth 7
4-M4 Depth 7
Profile of T-Groove
on Frame
Detail Diagram U (Detail of Z-Axis Slider)
Dial for X-Slider
Position Tuning
X View
T-Groove ×2
X View
Operating Range
HOME
HOME
Dial for Z-Slider Position Tuning
V View
Frame Datum Surface
T-Goove
(Same Profile on Opposite Side)
HOME
HOME
Dial for Y-Slider
Position Tuning
Operating
Range
M4 for Grounding
V View (Grounding Screw)
SE: Stroke end
ME: Mechanical end
2-M3 Depth 6
Detail Diagram Y
(Side Surface of Y-Axis Slider)
(Same Profile on Opposite Side)
18-M5 Depth 10
Frame
Datum Surface
6-φ 5
H7 Depth 5
View for Top Base Hole Allocation
Pin Hole and
Z Slider Position
Mass: 51.3kg

Table of Contents