EasyManua.ls Logo

IAI TTA Series - Three-Axis: X-Axis 300 Mm Stroke, Y-Axis 250 Mm Stroke, Z-Axis 100 Mm;150 Mm Stroke

IAI TTA Series
378 pages
Print Icon
To Next Page IconTo Next Page
To Next Page IconTo Next Page
To Previous Page IconTo Previous Page
To Previous Page IconTo Previous Page
Loading...
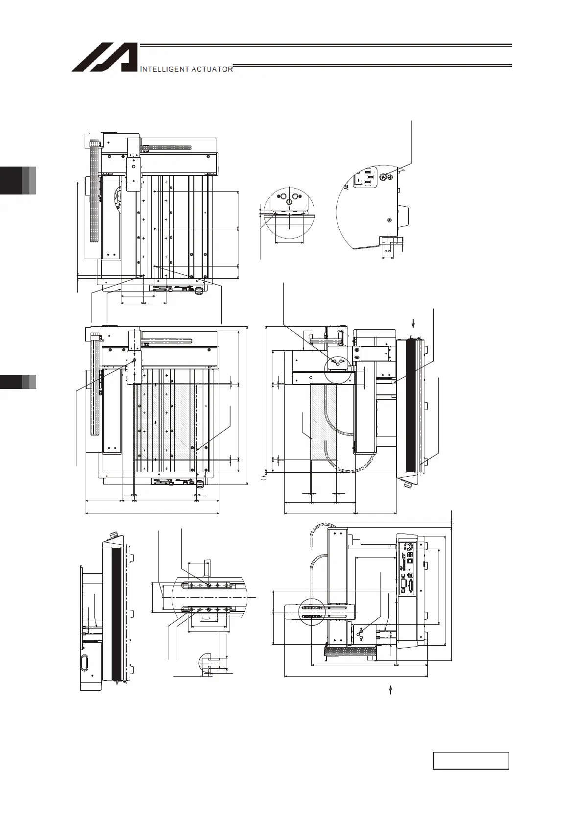
Chapter 9 External Dimensions9.2 Pulse Motor Type (Incremental Specication)
344
[6] Three-Axis: X-Axis 300mm Stroke, Y-Axis 250mm Stroke, Z-Axis 100mm/150mm Stroke
4.3
7.3
1.5
4.5
Xst: 300
Zst: 100
Zst:150
5
108.5
5
77
50
3
5 5
Zst+185.5
585
(163)
55
137.2
ME
SE
ME
MESEME
Y
85
(16.8)
536
163
303
440
25
27.5
126
Zst=100:340
Zst=150:390
130
Zst=100:574.5
Zst=150:624.5
U
Yst: 250
Xst: 300
5
90
55
50
5
215.5
50
(536)
634.7
146
ME
SEME
ME
ME
SE
25
50
60
35
43
30
27.5
25
90.5
135.5
90
12.5 5x75p=375
50 150 150
3
7
8
16.5
60
3.5 5
12-M4 Depth 8
Frame
Datum Surface
3-φ 5
H7 Depth 5
2-M3 Depth 6
Detail Diagram Y (Side Surface of Y-Axis Slider)
(Same Profile on Opposite Side)
M4 for Grounding
V View (Grounding Screw)
Dial for Y-Slider
Position Tuning
Dial for X-Slider
Position Tuning
Dial for Z-Slider Position Tuning
V View
Frame Datum Surface
T-Goove
(Same Profile on Opposite Side)
Operating
Range
Operating
Range
HOME
HOME
HOME
HOME
2-
φ
5 H7 Depth 5
(Reamer Pitch
Tolerance ±0.02)
X View
X View
T-Groove ×2
4-M5 Depth 7
4-M4 Depth 7
Profile of T-Groove
on Frame
Detail Diagram U (Detail of Z-Axis Slider)
T-Groove ×2
SE: Stroke end
ME: Mechanical end
View for Top Base Hole Allocation
Mass: 37kg

Table of Contents