EasyManua.ls Logo

IAI TTA Series - Pulse Motor Type (Incremental Specification); Work Moving Type; Two-Axis: X & Y-Axes 200 Mm Stroke

IAI TTA Series
378 pages
Print Icon
To Next Page IconTo Next Page
To Next Page IconTo Next Page
To Previous Page IconTo Previous Page
To Previous Page IconTo Previous Page
Loading...
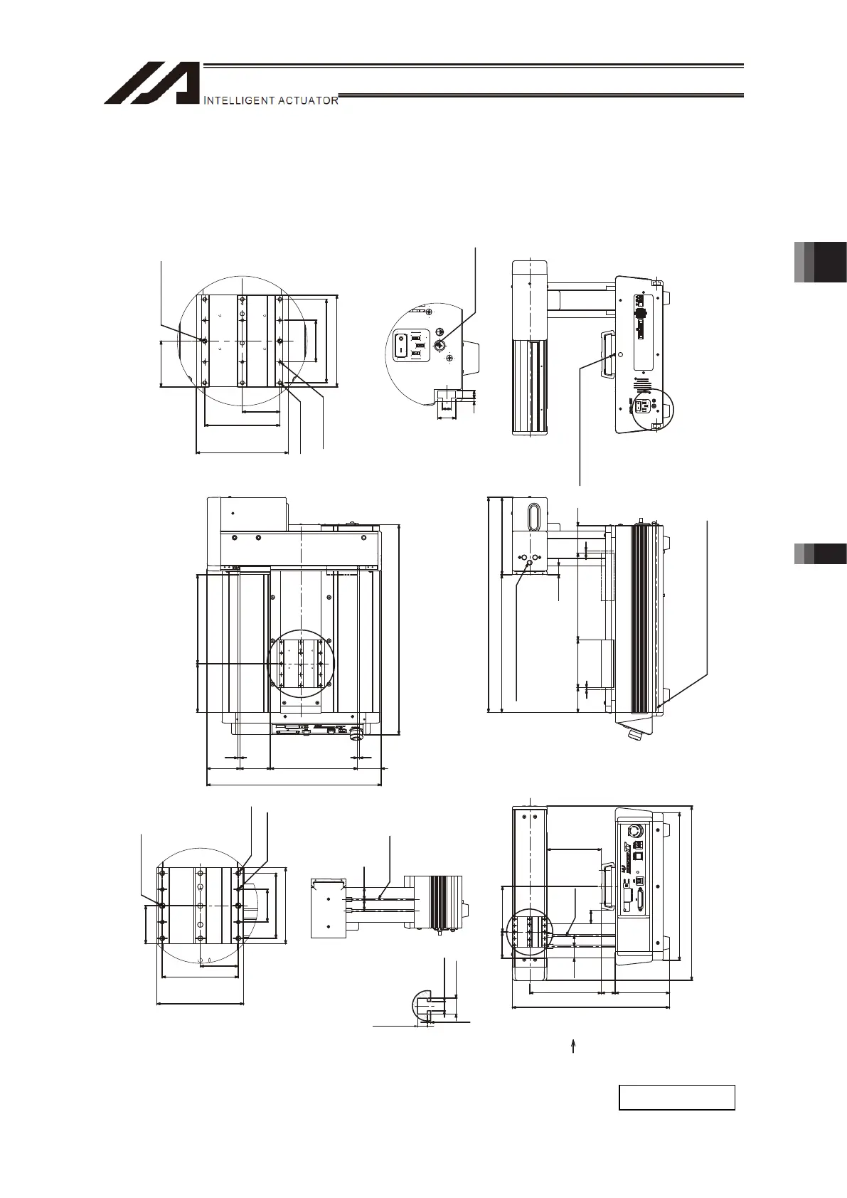
Chapter 9 External Dimensions 9.2 Pulse Motor Type (Incremental Specication)
327
9. 2 Pulse Motor Type (Incremental Specification)
9.2.1 Work Moving Type
[1] Two-Axis: X & Y-Axes 200mm Stroke
4.3
7.3
1.5
4.5
Xst:200
5
5
63110
178.5
57
317
495.5
20.5
ME SEME
60
362
340
32 165125
105
30
125
27.5 25
401
U
Yst: 200
5 5
55 70
205
483.7
112
76
(401)
ME
ME
SE
S
70
80
70
30
60
35
35
55
100
50
110
90
110
45
V
8
16.5
3 7
27.525
6-M5 Depth 7
6-M4 Depth 7
Detail Diagram S
(Detail of X-Axis Slider)
(Reamer Pitch
Tolerance ±0.02)
2-φ5 H7 Depth 5
Dial for X-Slider Position Tuning
Detail Diagram V (Grounding Screw)
M4 for Grounding
HOME
HOME
T-Groove (Same Profile on Opposite Side)
Dial for Y-Slider Position Tuning
6-M5 Depth 7
4-M4 Depth 7
2-
φ5 H7 Depth 5
Detail Diagram U (Detail of Y-Axis Slider)
(Reamer Pitch
Tolerance ±0.02)
T-Groove ×2
T-Groove
×2
X View
(T-Groove on Side of Main Unit)
Profile of T-Groove
on Frame
X View
SE: Stroke end
ME: Mechanical end
Mass: 24kg

Table of Contents