EasyManua.ls Logo

IAI TTA Series - Four-Axis: X & Y-Axes 500 Mm Stroke,Z- Axis 100 Mm;150 Mm Stroke

IAI TTA Series
378 pages
Print Icon
To Next Page IconTo Next Page
To Next Page IconTo Next Page
To Previous Page IconTo Previous Page
To Previous Page IconTo Previous Page
Loading...
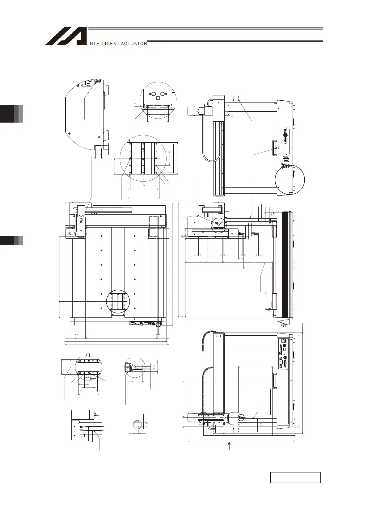
Chapter 9 External Dimensions9.2 Pulse Motor Type (Incremental Specication)
338
[12] Four-Axis: X & Y-Axes 500mm Stroke,Z- Axis 100mm/150mm Stroke
(12)
25
27.5
180
235.5
640
701
125 32
Zst=100:740.5
Zst=100:790.5
Zst=100:475
Zst=150:525
60 255
U
W
55.5
Zst: 100
Zst:150
5
5
Xst: 500
5
63
5
Zst: 100
Zst:150
55
75.5
145
Zst=100:100
Zst=150:50
57 110
78.560
35.5
89.5
548
562
795.5
137.2
Zst=100:383.5
Zst=150:433.5
(200)
25
27.5
55
ME
ME
SE
ME
ME
SE
Y
V
Yst: 500
5
5
61
717
8258
846.8
112 450
(701)
S
73
8
16.5
55
110
90
45
50
100
110
43
35
60
50
25
30
19
φ
10 h7
20
1.5 4.5
4.3
7.3
25
27.5
60
3.5 5
Detail Diagram V (Grounding Screw)
M4 for Grounding
2-M3
Depth 6
Detail Diagram Y (Side Surface of Y-Axis Slider)
(Same Profile on Opposite Side)
Dial for X-Slider
Position Tuning
SE: Stroke end
ME: Mechanical end
Detail Diagram S (Detail of X-Axis Slider)
Volume for Position
Tuning in Turning Direction
6-M5 Depth 7
6-M4 Depth 7
(Reamer Pitch
Tolerance ±0.02)
2-φ5 H7 Depth 5
Dial for Z-Slider Position Tuning
Dial for Y-Slider
Position Tuning
HOME
HOME
T-Groove ×2
(Same Profile on
Opposite Side
of Frame)
HOME:Z-Slider
ME:Z-Slider
ME:Z-Slider
SE:Z-Slider
ME:Spline
SE:Spline
ME:Spline
HOME:Spline
Detail Diagram W
(Detail of R-axis tip end)
R-axis Datum Surface
4-M5 Depth 7
4-M4 Depth 7
(Reamer Pitch
Tolerance ±0.02)
2-φ5 H7 Depth 5
M5 Depth 10
X View
(T-Groove on Side of Main Unit)
T-Groove
×2
Profile of T-Groove
on Frame
Detail Diagram U
(Detail of Z-Axis Slider)
(R-axis on the Other Side)
X View
T-Groove
×2
Mass: 48kg

Table of Contents