EasyManua.ls Logo

IAI TTA Series - Work Fixing Type; Two-Axis: X-Axis 200 Mm Stroke, Y-Axis 150 Mm Stroke

IAI TTA Series
378 pages
Print Icon
To Next Page IconTo Next Page
To Next Page IconTo Next Page
To Previous Page IconTo Previous Page
To Previous Page IconTo Previous Page
Loading...
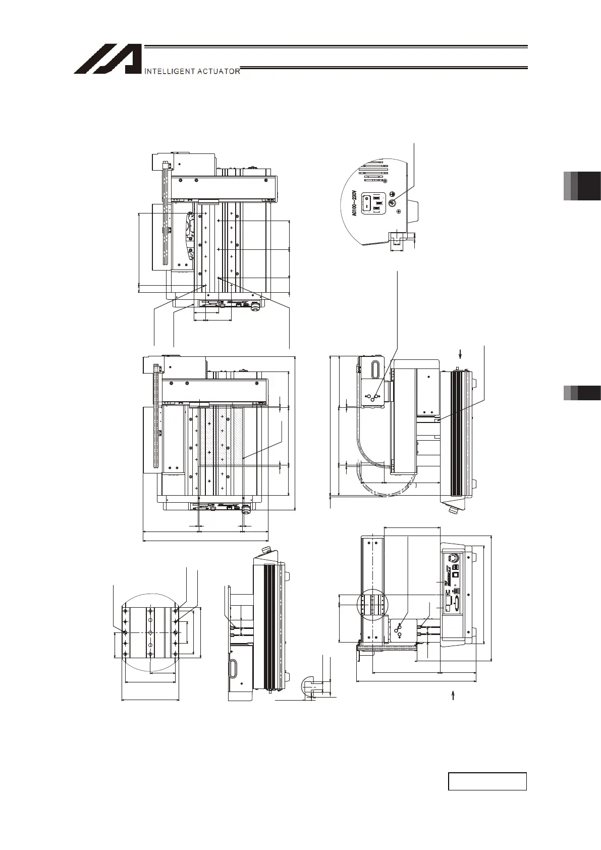
Chapter 9 External Dimensions 9.2 Pulse Motor Type (Incremental Specication)
339
9.2.2 Work Fixing Type
[1] Two-Axis: X-Axis 200mm Stroke, Y-Axis 150mm Stroke
4.3
7.3
1.5
4.5
5
Xst: 200105
5
80195
(4.5)
180
485
ME SE
ME
195
416.5
126 235
27.5
25
340
436
35130
U
Yst:150
Xst: 200
5 5
5 5
196
105 126
90
(436)
534.7
ME
ME SE
ME
SE
ME
Operating
Range
60
70
30
80
70
35
35
3 7
8
16.5
40.590
85.5
25 5x50p=250
50 100 100
Frame
Datum Surface
Frame Datum Surface
View for Top Base Hole Allocation
27.525
Detail Diagram V (Grounding Screw)
M4 for Grounding
12-M4 Depth 8
6-M5 Depth 7
4-M4 Depth 7
3-φ 5 H7 Depth 5
Dial for Y-Slider Position Tuning
Dial for X-Slider Position Tuning
HOME
V View
2-φ 5 H7 Depth 5
Detail Diagram U (Detail of Y-Axis Slider)
(Reamer Pitch
Tolerance ±0.02)
T-Groove ×2
T-Groove
×2
Profile of T-Groove
on Frame
X View
X View
SE: Stroke end
ME: Mechanical end
HOME
HOME
Mass: 25kg

Table of Contents