EasyManua.ls Logo

IAI TTA Series - Four-Axis: X- Axis 400 Mm Stroke, Y-Axis 350 Mm Stroke, Z-Axis 100 Mm;150 Mm Stroke

IAI TTA Series
378 pages
Print Icon
To Next Page IconTo Next Page
To Next Page IconTo Next Page
To Previous Page IconTo Previous Page
To Previous Page IconTo Previous Page
Loading...
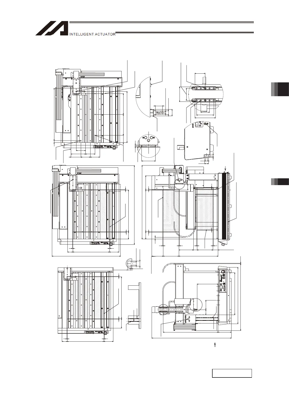
Chapter 9 External Dimensions 9.1 Servo Motor Type, Pulse Motor Type (Battery-less Absolute Specication)
325
[11] Four-Axis: X- Axis 400mm Stroke, Y-Axis 350mm Stroke, Z-Axis 100mm/150mm Stroke
4.3
7.3
1.5
4.5
Zst:100
Zst: 150
Xst: 400
5
Zst:100
Zst:150
5
Zst=100:100
Zst=150: 50
5 5
70
90
5 5
5
75
5
375
35.5
139.5
137.2
Zst=100:158.5
Zst=150:
108.5
705
55
ME
SE
ME
ME
SE
ME
SE
ME
ME SE ME
ME
Y
759.5
639.7
403
126
540
25
27.5
Zst=100:475
Zst=150:525
U
W
Yst: 350
Xst: 400
5
70
5
55
90 50
754.8
SEME ME
ME
SE
ME
490
95.59090
140.590
70 200
20 5x100p=500
90
200
35
60
43
25
50
30
2-φ5 H7
8
16.5
3 7
20
φ10 h7
19
Xst: 40090
Yst: 350
5 5
90
5 5
50
MESEME
ME
SE
ME
27.5
25
60
3.5 5
(Xst:400)
(17)
(16.8)
(200)
(50) (90)
(655.8)
HOME
HOME
R-Slider
Operating Range
R-Slider Operating Range
T-Groove
×2
X View
T-Groove
×2
X View
Dial for Z-Slider
Position Tuning
Profile of T-Groove
on Frame
HOME
HOME
HOME
HOME
R-Slider
Operating Range
Z-Slider
Operating Range
T-Goove (Same Profile on Opposite Side)
Dial for Y-Slider
Position Tuning
Frame Datum Surface
V View
HOME
HOME
Dial for Z-Slider
Position Tuning
Z-Slider
Operating Range
18-M5
Depth 10
Frame
Datum Surface
6-φ 5 H7 Depth 5
View for Top Base Hole Allocation
Pin Hole and
Z Slider Position
2-M3
Depth 6
R Spline Position
Dial for R-axis
Rotation
Position Tuning
R-axis
Datum
Surface
Detail Diagram W
(Detail of R-Spline tip end)
M5 Depth 10
Detail Diagram Y
(Side Surface of Y-Axis Slider)
(Same Profile on Opposite Side)
(Reamer Pitch
Tolerance ±0.02)
Depth 5
4-M5 Depth 7
4-M4 Depth 7
Detail Diagram U
(Detail of Z-Axis Slider)
SE: Stroke end
ME: Mechanical end
V View (Grounding Screw)
M4 for
Grounding
Mass: 46.3kg

Table of Contents