EasyManua.ls Logo

Bosch VLS 5140 - Aberturas para Elevadores con Aparato 3 D

Bosch VLS 5140
Print Icon
To Next Page IconTo Next Page
To Next Page IconTo Next Page
To Previous Page IconTo Previous Page
To Previous Page IconTo Previous Page
Loading...
1 689 978 572 2014-06-06| Robert Bosch GmbH
Planos del fundamento | VLS 5140 | 129 es
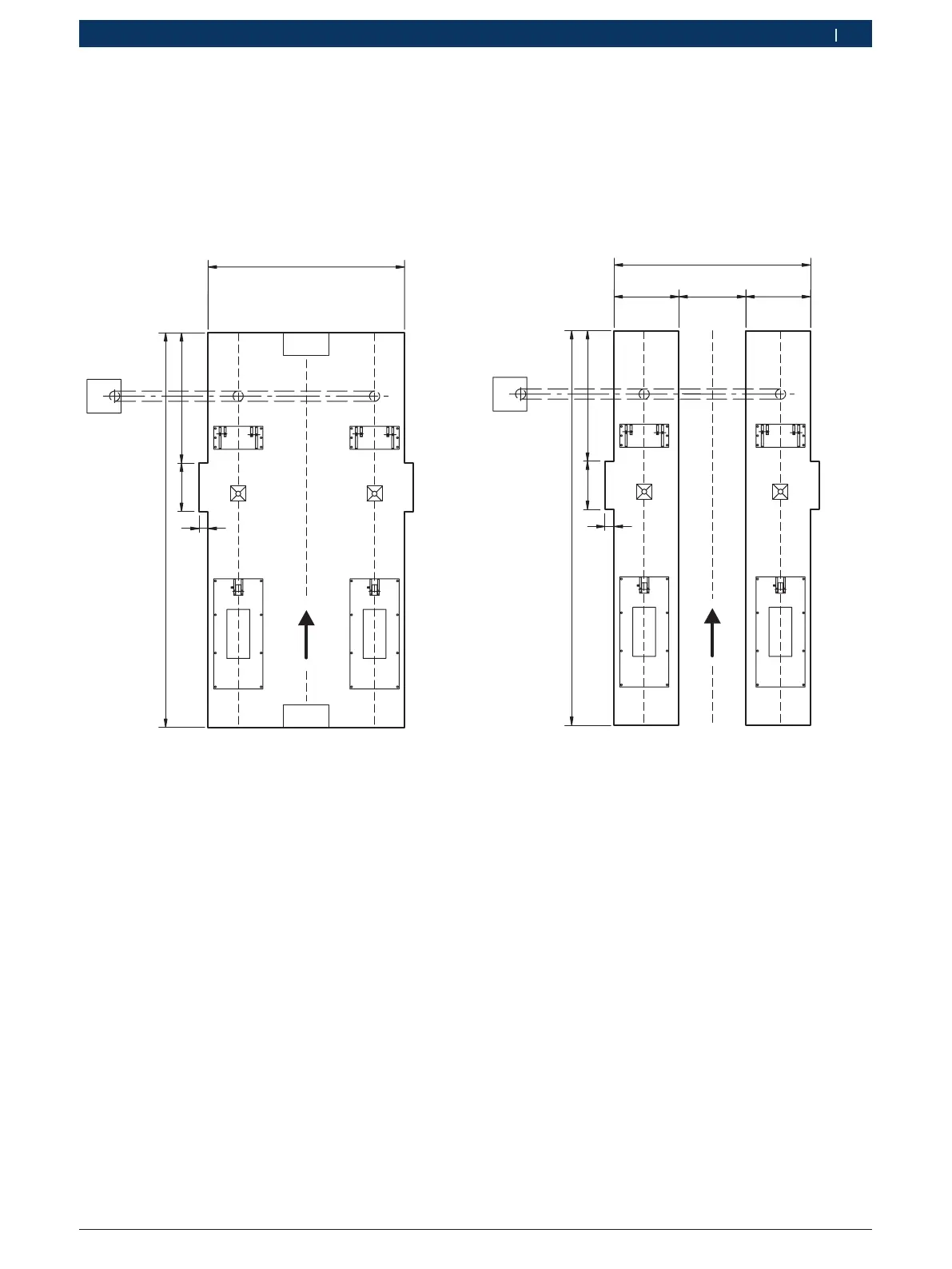
7.2.3 Aberturas para elevadores con aparato 3D
! En caso de que sea necesario colocar un equipo de
medición de ejes 3D en el elevador, en el lado de-
recho e izquierdo del fundamento es necesario que
haya aberturas para los adaptadores 1 690 701 078.
Fundamento aislado con aberturas
2320
4900
1620 600
30
Fig. 30: Plan del fundamento 5
(Todas las medidas en mm. Flecha = dirección de
marcha.)
i Para el resto de dimensiones, ver la Fig. 28.
Fundamento corrido con aberturas
2320
790 765
765
1620
600
4900
30
Fig. 31: Plan del fundamento 6
(Todas las medidas en mm. Flecha = dirección de
marcha.)
i Para el resto de dimensiones, ver la Fig. 29.

Table of Contents

Related product manuals