EasyManua.ls Logo

Bosch VLS 5140 - Cavidades para Plataformas Elevatórias Com Aparelho 3 D

Bosch VLS 5140
Print Icon
To Next Page IconTo Next Page
To Next Page IconTo Next Page
To Previous Page IconTo Previous Page
To Previous Page IconTo Previous Page
Loading...
1 689 978 572 2014-06-06| Robert Bosch GmbH
Esquemas de base | VLS 5140 | 265 pt
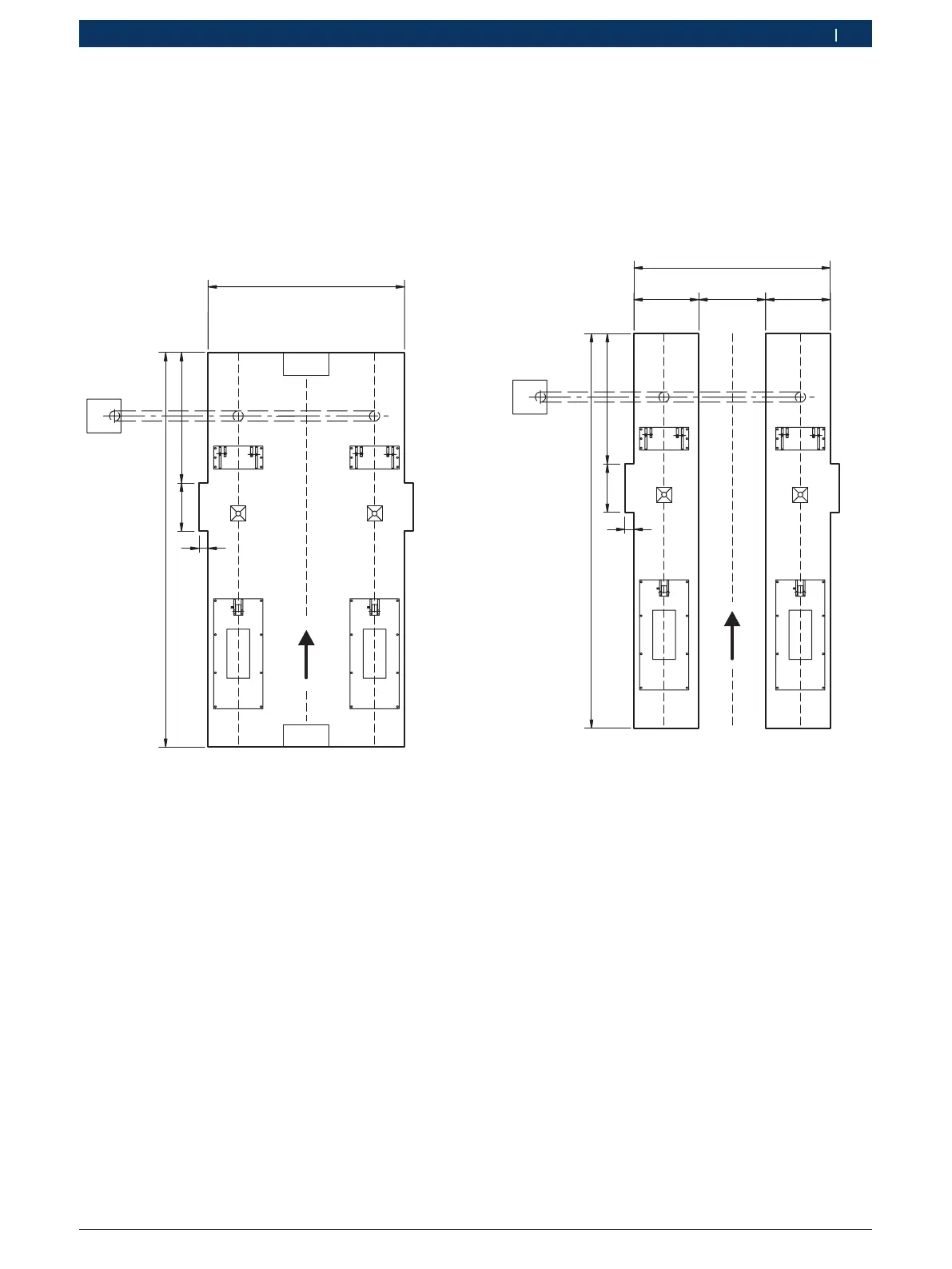
7.2.3 Cavidades para plataformas elevatórias com
aparelho 3D
! Caso se pretenda colocar um alinhador de rodas 3D
na plataforma elevatória, são necessárias cavidades
do lado esquerdo e direito da base para o adaptador
1 690 701 078.
Base individual com cavidades
2320
4900
1620 600
30
Fig. 30: Esquema de base 5
(Todas as dimensões em mm. Seta = sentido de acesso.)
i Ver todas as outras dimensões na Fig. 28.
Baldrames com cavidades
i
2320
790 765
765
1620
600
4900
30
Fig. 31: Esquema de base 6
(Todas as dimensões em mm. Seta = sentido de acesso.)
i Ver todas as dimensões na Fig. 29.

Table of Contents

Related product manuals