EasyManua.ls Logo

Bosch VLS 5140 - Lifting Platforms with Wheel-Free Scissor Lift

Bosch VLS 5140
Print Icon
To Next Page IconTo Next Page
To Next Page IconTo Next Page
To Previous Page IconTo Previous Page
To Previous Page IconTo Previous Page
Loading...
1 689 978 572 2014-06-06| Robert Bosch GmbH
Pneumatic System | VLS 5140 | 63 en
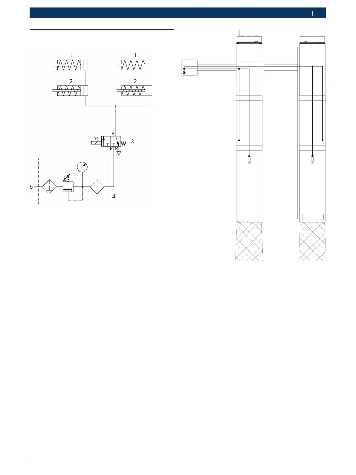
8.2 Lifting platforms with wheel-free
scissor lift
Fig. 34: Pneumatics diagram (with wheel-free scissor lift)
1 Wheel-free scissor lift release cylinder
2 Runway release cylinder
3 Pneumatic valve (3/2-way valve)
4 Compressed air service unit (customer)
5 Compressed air inlet (customer)
! Operating pressure: 8 – 10 bar. Fig. 35: Pneumatic system routing diagram
(with wheel-free scissor lift)

Table of Contents

Related product manuals