EasyManua.ls Logo

Bosch VLS 5140 - 7 Schémas des Fondations; Montage Au-Dessus du Sol; Semelle Isolée

Bosch VLS 5140
Print Icon
To Next Page IconTo Next Page
To Next Page IconTo Next Page
To Previous Page IconTo Previous Page
To Previous Page IconTo Previous Page
Loading...
1 689 978 572 2014-06-06| Robert Bosch GmbH
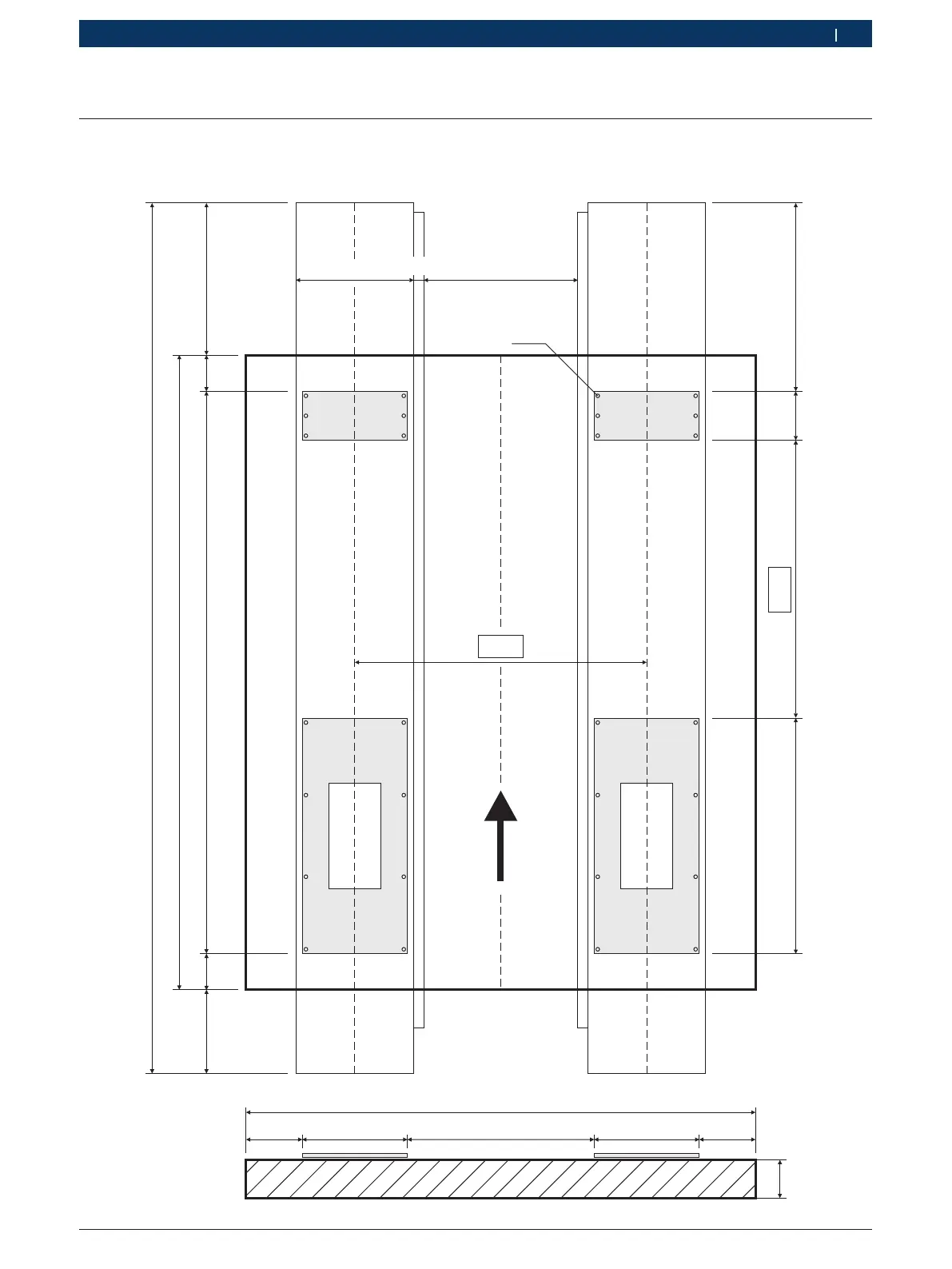
Schémas des fondations | VLS 5140 | 91 fr
7. Schémas des fondations
7.1 Montage au-dessus du sol
7.1.1 Semelle isolée
4800
838200
200
3100
462
3500
Ø20
1038270
1530
1300
1610
310 580 1030 580 310
min.
210
2810
850650
55
Fig. 26: Schéma des fondations 1 (toutes les dimensions en mm; flèche = sens de la montée)

Table of Contents

Related product manuals