EasyManua.ls Logo

Bosch VLS 5140 - Dimensions for VLS 5140 la

Bosch VLS 5140
Print Icon
To Next Page IconTo Next Page
To Next Page IconTo Next Page
To Previous Page IconTo Previous Page
To Previous Page IconTo Previous Page
Loading...
1 689 978 572 2014-06-06| Robert Bosch GmbH
56 | VLS 5140 | Dimensionsen
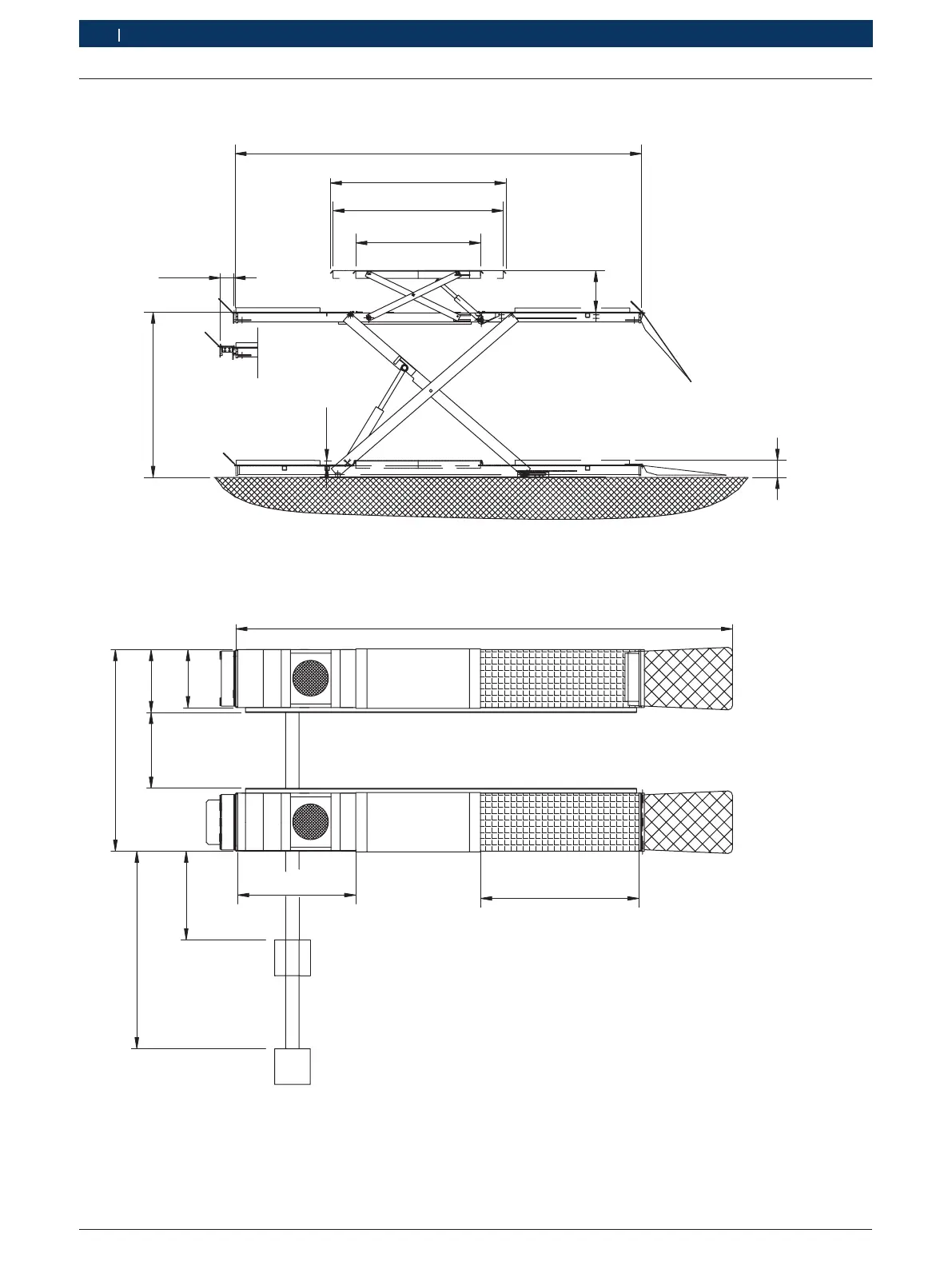
6.4 Dimensions for VLS 5140 LA
1400
1910
1970
4800
152
450
2100
50
210
5770
1800
1350
max. 2250
min. 1000
2260
705
650
(850)
Fig. 25: Dimensional drawing 4

Table of Contents

Related product manuals