EasyManua.ls Logo

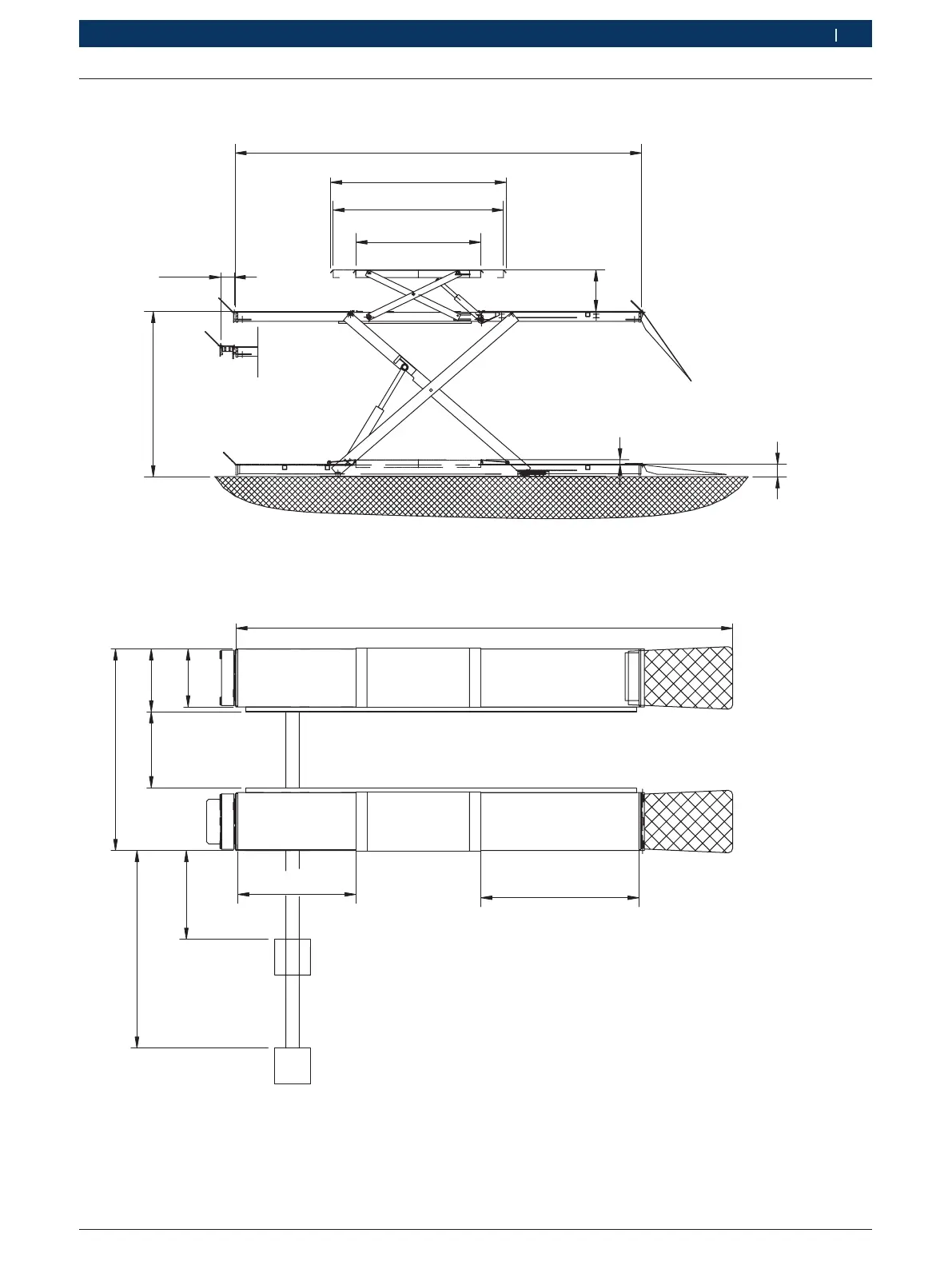
Bosch VLS 5140 - Dimensions VLS 5140 L

Bosch VLS 5140
Print Icon
To Next Page IconTo Next Page
To Next Page IconTo Next Page
To Previous Page IconTo Previous Page
To Previous Page IconTo Previous Page
Loading...
1 689 978 572 2014-06-06| Robert Bosch GmbH
Dimensions | VLS 5140 | 89 fr
6.3 Dimensions VLS 5140 L
1400
1910
1970
4800
152
2100
450
50
160
5770
1800
1350
max. 2250
min. 1000
2260
(850)
705
650
Fig. 24: Schéma de cotes 3

Table of Contents

Related product manuals