EasyManua.ls Logo

Bosch VLS 5140 - Continuous Footing

Bosch VLS 5140
Print Icon
To Next Page IconTo Next Page
To Next Page IconTo Next Page
To Previous Page IconTo Previous Page
To Previous Page IconTo Previous Page
Loading...
1 689 978 572 2014-06-06| Robert Bosch GmbH
58 | VLS 5140 | Foundation Plans en
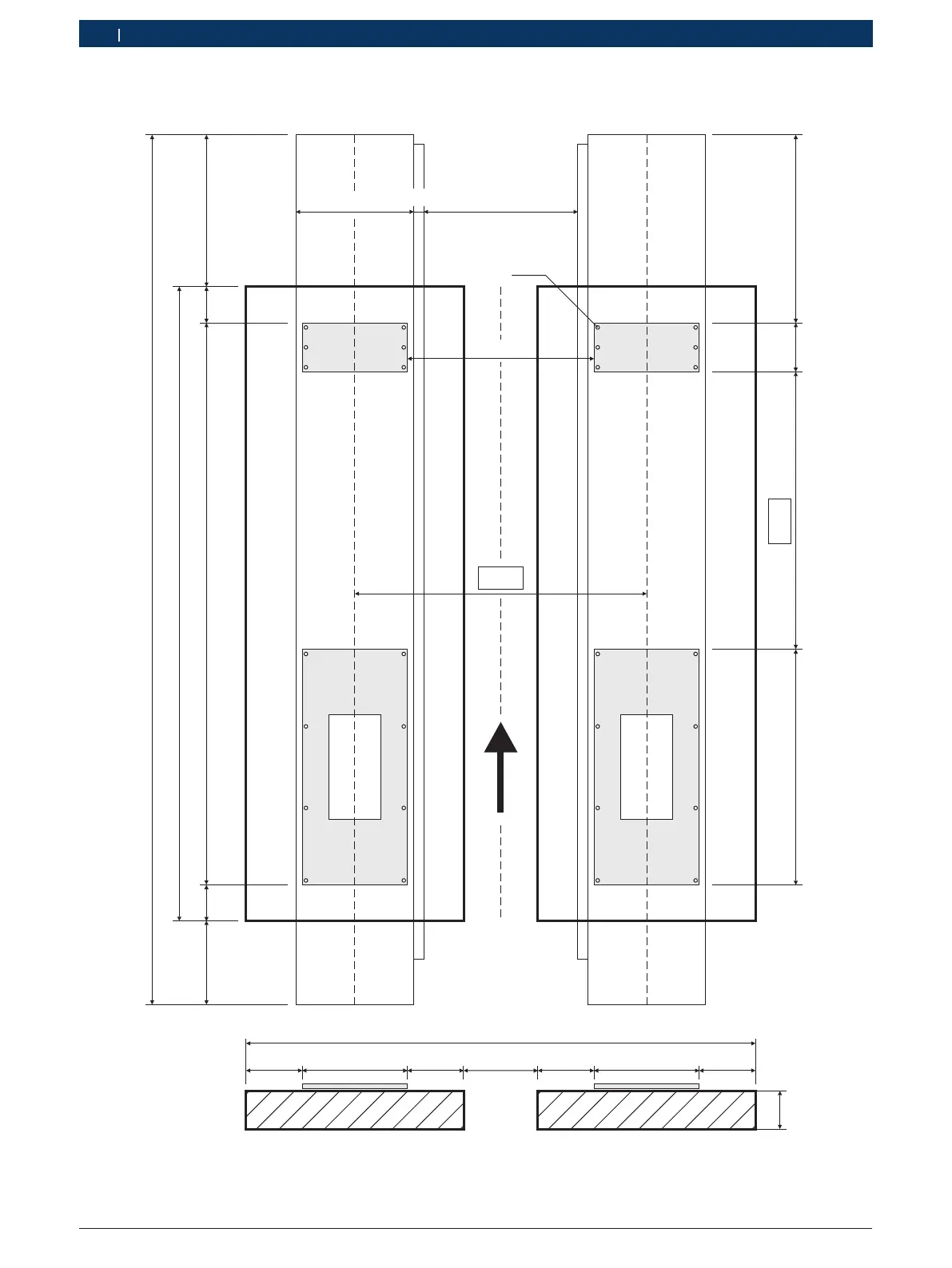
7.1.2 Continuous footing
4800
838200
200
3100
462
3500
Ø20
1038270
1530
1300
1610
310 580 410 580 310
min.
210
2810
850
1030
310 310
650
55
Fig. 27: Foundation plan 2 (dimensions in mm. Arrow = direction in which vehicle approaches)

Table of Contents

Related product manuals