EasyManua.ls Logo

Bosch VLS 5140 - 7 Fundamentpläne; Überflur-Montage; Einzelfundament

Bosch VLS 5140
Print Icon
To Next Page IconTo Next Page
To Next Page IconTo Next Page
To Previous Page IconTo Previous Page
To Previous Page IconTo Previous Page
Loading...
1 689 978 572 2014-06-06| Robert Bosch GmbH
Fundamentpläne | VLS 5140 | 23 de
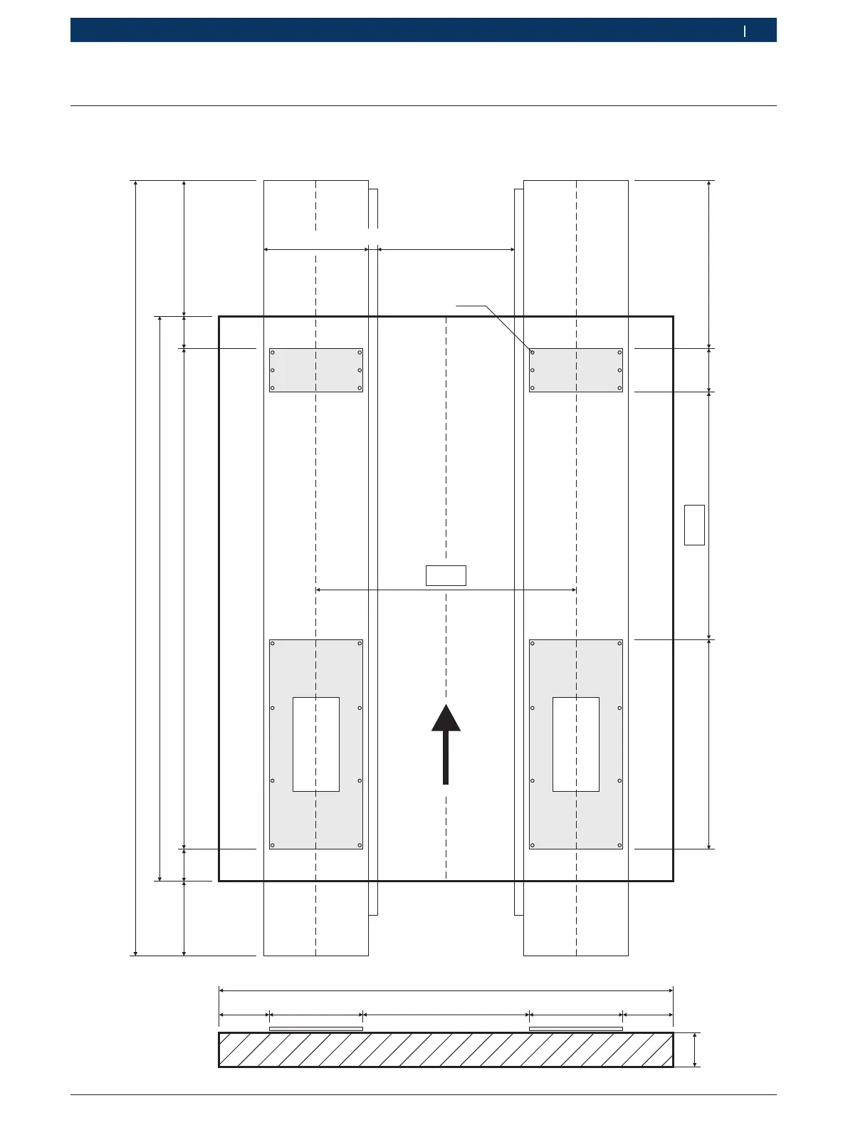
7. Fundamentpläne
7.1 Überflur-Montage
7.1.1 Einzelfundament
4800
838200
200
3100
462
3500
Ø20
1038270
1530
1300
1610
310 580 1030 580 310
min.
210
2810
850650
55
Fig. 26: Fundamentplan 1 (Alle Maße in mm. Pfeil = Auffahrrichtung.)

Table of Contents

Related product manuals