EasyManua.ls Logo

Bosch VLS 5140 - Page 231

Bosch VLS 5140
Print Icon
To Next Page IconTo Next Page
To Next Page IconTo Next Page
To Previous Page IconTo Previous Page
To Previous Page IconTo Previous Page
Loading...
1 689 978 572 2014-06-06| Robert Bosch GmbH
Funderingsschema's | VLS 5140 | 231 nl
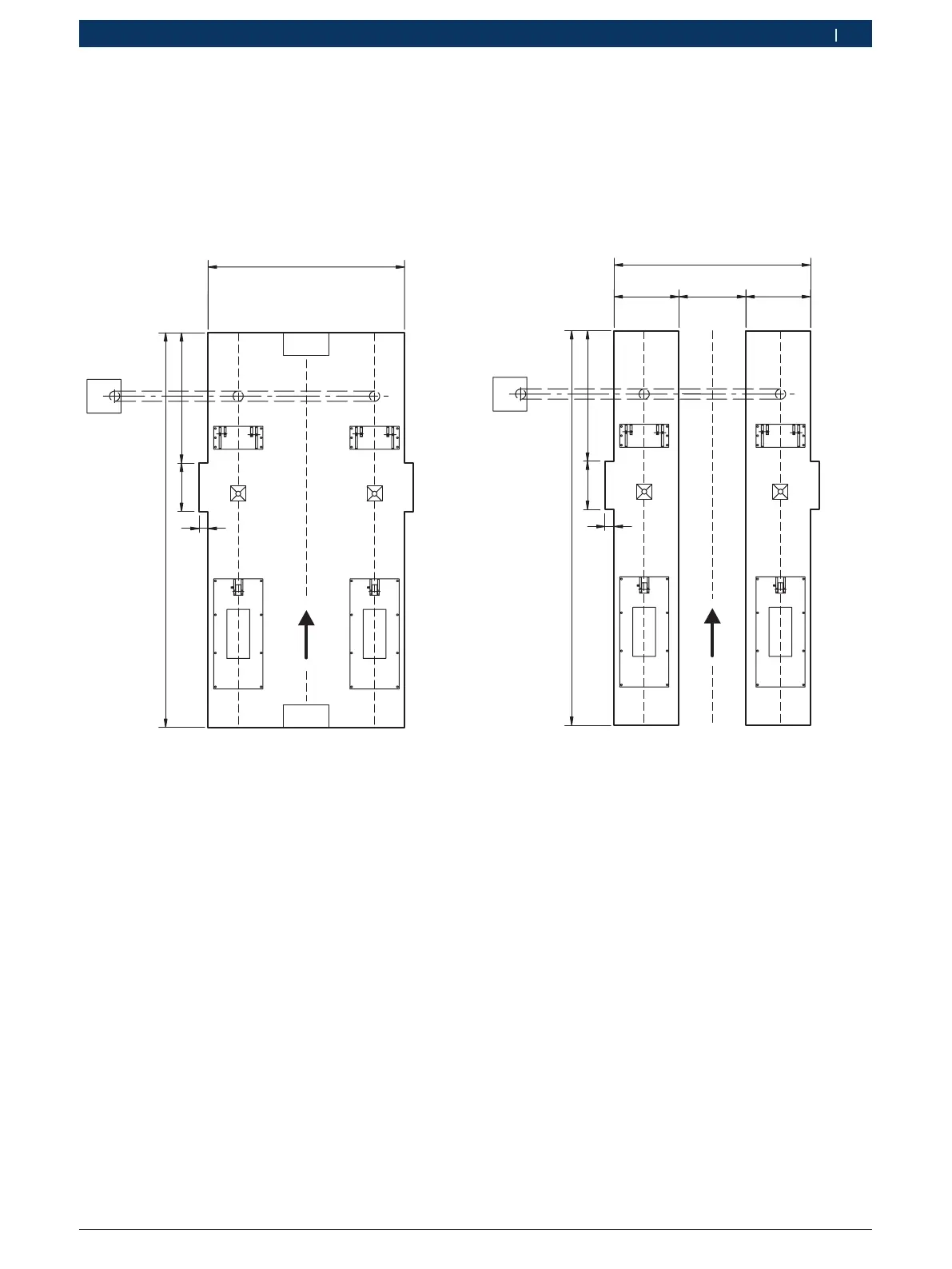
7.2.3 Uitsparingen voor hefbruggen met 3D-toestel
! Als een 3D-wieluitlijnapparaat aan de hefbrug aan-
gebracht moet worden, dan zijn aan de linker- en
rechterkant van de fundering uitsparingen voor de
adapters 1 690 701 078 vereist.
Afzonderlijke fundering met uitsparingen
2320
4900
1620 600
30
Fig. 30: Funderingsschema 5
(Alle afmetingen in mm. pijl = oprijrichting.)
i Alle andere afmetingen zie Fig. 28.
Strookfunderingen met uitsparingen
2320
790 765
765
1620
600
4900
30
Fig. 31: Funderingsschema 6
(Alle afmetingen in mm. pijl = oprijrichting.)
i Alle andere afmetingen zie Fig. 29.

Table of Contents

Related product manuals