EasyManua.ls Logo

Bosch VLS 5140 - Page 27

Bosch VLS 5140
Print Icon
To Next Page IconTo Next Page
To Next Page IconTo Next Page
To Previous Page IconTo Previous Page
To Previous Page IconTo Previous Page
Loading...
1 689 978 572 2014-06-06| Robert Bosch GmbH
Fundamentpläne | VLS 5140 | 27 de
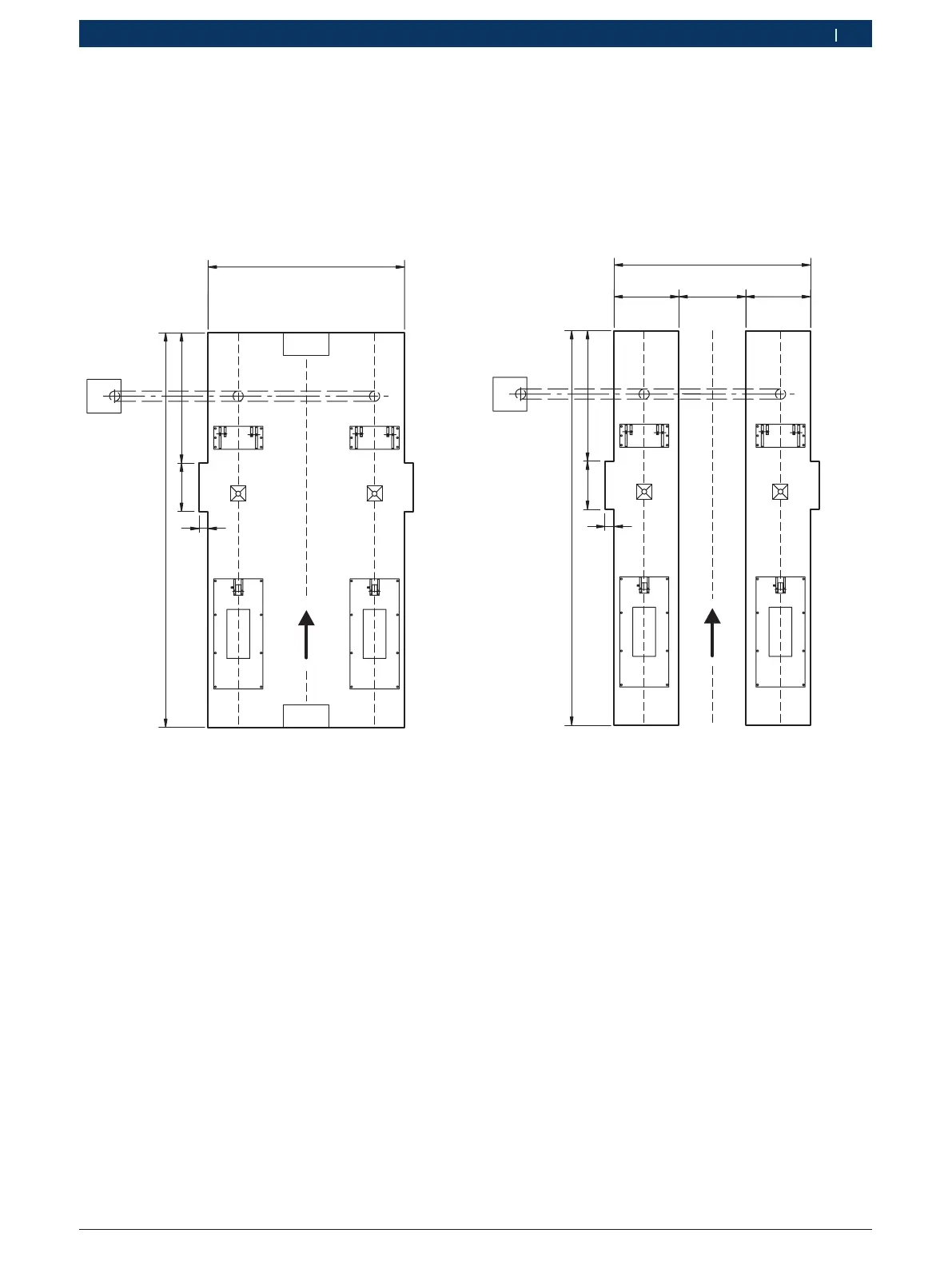
7.2.3 Aussparungen für Hebebühnen mit 3D-Gerät
! Falls ein 3D-Achsmessgerät an der Hebebühne ange-
bracht werden soll, sind an der linken und rechten
Seite des Fundaments Aussparungen für die Adapter
1 690 701 078 erforderlich.
Einzelfundament mit Aussparungen
2320
4900
1620 600
30
Fig. 30: Fundamentplan 5
(Alle Maße in mm. Pfeil = Auffahrrichtung.)
i Alle anderen Abmessungen siehe Fig. 28.Streifenfun-
damente mit Aussparungen
2320
790 765
765
1620
600
4900
30
Fig. 31: Fundamentplan 6
(Alle Maße in mm. Pfeil = Auffahrrichtung.)
i Alle anderen Abmessungen siehe Fig. 29.

Table of Contents

Related product manuals