EasyManua.ls Logo

Bosch VLS 5140 - Page 61

Bosch VLS 5140
Print Icon
To Next Page IconTo Next Page
To Next Page IconTo Next Page
To Previous Page IconTo Previous Page
To Previous Page IconTo Previous Page
Loading...
1 689 978 572 2014-06-06| Robert Bosch GmbH
Foundation Plans | VLS 5140 | 61 en
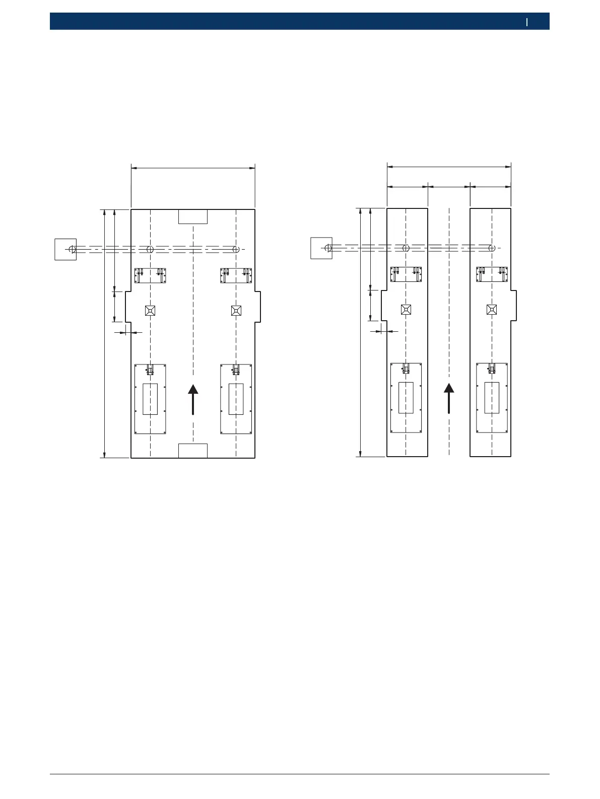
7.2.3 Recesses for lifting platforms with 3D unit
! If a 3D wheel alignment unit is to be fitted to
the lifting platform, recesses for the adapters
1 690 701 078 are required on the left and right
sides of the foundation.
Individual footing with recesses
2320
4900
1620 600
30
Fig. 30: Foundation plan 5
(All dimensions in mm. Arrow = Drive-on direction.)
i For all other dimensions, refer to Fig. 28.
Continuous footing with recesses
2320
790 765
765
1620
600
4900
30
Fig. 31: Foundation plan 6
(All dimensions in mm. Arrow = Drive-on direction).
i For all other dimensions, refer to Fig. 29.

Table of Contents

Related product manuals