EasyManua.ls Logo

YASKAWA GA700 - Page 286

YASKAWA GA700
1053 pages
Print Icon
To Next Page IconTo Next Page
To Next Page IconTo Next Page
To Previous Page IconTo Previous Page
To Previous Page IconTo Previous Page
Loading...
4.6 Safe Disable Input
286 YASKAWA ELECTRIC SIEP C710617 05F YASKAWA AC Drive GA700 Technical Manual
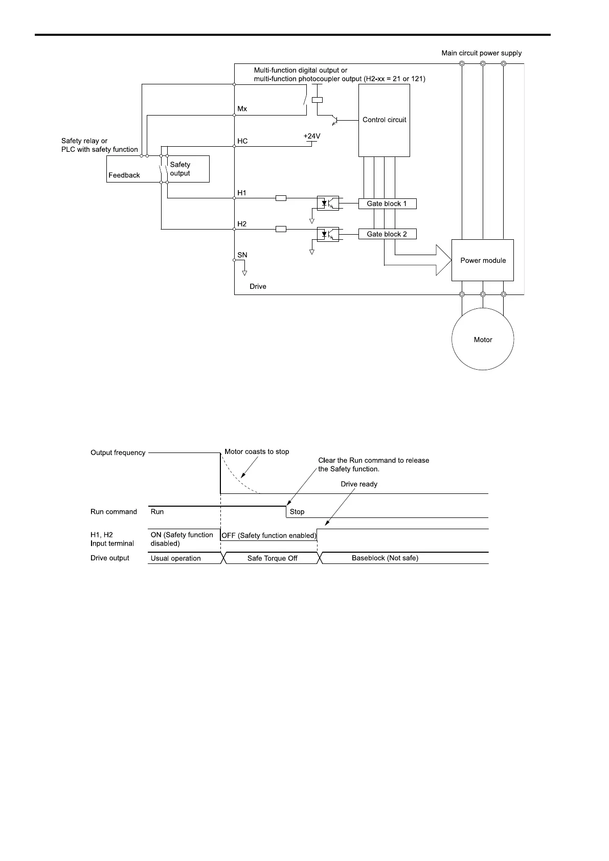
Figure 4.27 Safe Disable Function Wiring Example
Enabling and Disabling the Drive Output (“Safe Torque Off”)
Refer to Figure 4.28 for an example of drive operation when as the drive changes from the "Safe Torque Off"
status to usual operation.
Figure 4.28 Safe Disable Operation
Switching from Usual Operation to “Safe Torque Off”
Turn OFF (open) safety input terminal H1 or H2 to enable the Safe Disable function. When the Safe Disable
function is enabled while the motor is operating, the drive output and motor torque turn off and the motor always
coasts to stop. The b1-03 [Stopping Method Selection] setting does not have an effect on the stopping method.
The Safe Torque Off status is only possible with the Safe Disable function. Clear the Run command to stop the
drive. Turning off drive output (a baseblock condition) Safe Torque Off.
NOTICE: A maximum of 3 ms will elapse from when terminals H1 or H2 shut off until the drive switches to the "Safe Torque Off"
status. Set the OFF status for terminals H1 and H2 to hold for at least 2 ms. The drive may not be able to switch to the “Safe
Torque Off” status if terminals H1 and H2 are only open for less than 2 ms.
Note:
Turn OFF terminals H1 and H2 after the motor fully stops. This will prevent the motor from coasting to stop during usual operation.
Going from “Safe Torque Off” to Usual Operation
The safety input will only release when there is no Run command.
During Stop:
When the Safe Disable function is triggered during stop, close the circuit between terminals H1-HC and H2-HC
to disable Safe Torque Off. Enter the Run command after the drive stops correctly.

Table of Contents

Other manuals for YASKAWA GA700

Related product manuals