EasyManua.ls Logo

Delta AH500 - 4.1.2 Installing Modules on a Main Backplane

Delta AH500
681 pages
To Next Page IconTo Next Page
To Next Page IconTo Next Page
To Previous Page IconTo Previous Page
To Previous Page IconTo Previous Page
Loading...
Chapter 4 Installing Hardware and Wiring
4-7
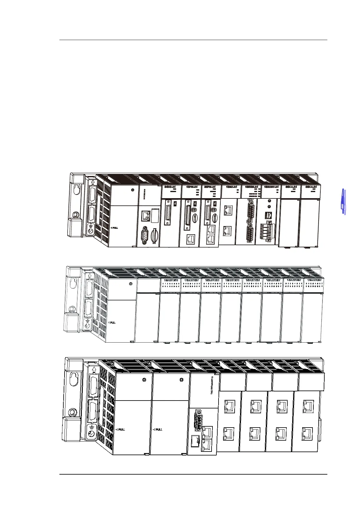
4.1.2 Installing Modules on a Main Backplane
For a main backplane as a master, the first slot from the left is for a power supply module, the second slot is
for a CPU module, and the slots following the second slot are for extension modules. All AH500 series
extension modules can be installed on a main backplane. Eight AH500 series network modules at most can be
installed on a main backplane, but no limits are imposed on the number of other modules which can be
installed on a main backplane. No limits are imposed on the installing of modules except that a power supply
module and a CPU module have to be installed in the first slot and the second slot respectively. Therefore,
users can configure the hardware by themselves. Besides, twelve extension modules at most can be installed
on a main backplane.
For a main backplane as a RTU, the second slot is for a RTU module, and only digital input/output modules,
analog input/output modules, temperature measurement modules and AH10SCM-5A/AH15SCM-5A are
supported. For redundant main backplane hardware installment, refer to AH500 Redundancy System
Operation Manual.
Main backplane as a master
Main backplane as a RTU
Redundant backplane as a master

Table of Contents

Other manuals for Delta AH500

Related product manuals