EasyManua.ls Logo

Telecor VS1 - Rack Mount Setup

Telecor VS1
281 pages
Print Icon
To Next Page IconTo Next Page
To Next Page IconTo Next Page
To Previous Page IconTo Previous Page
To Previous Page IconTo Previous Page
Loading...
VS1 Installation, Configuration & Operating Guide 23
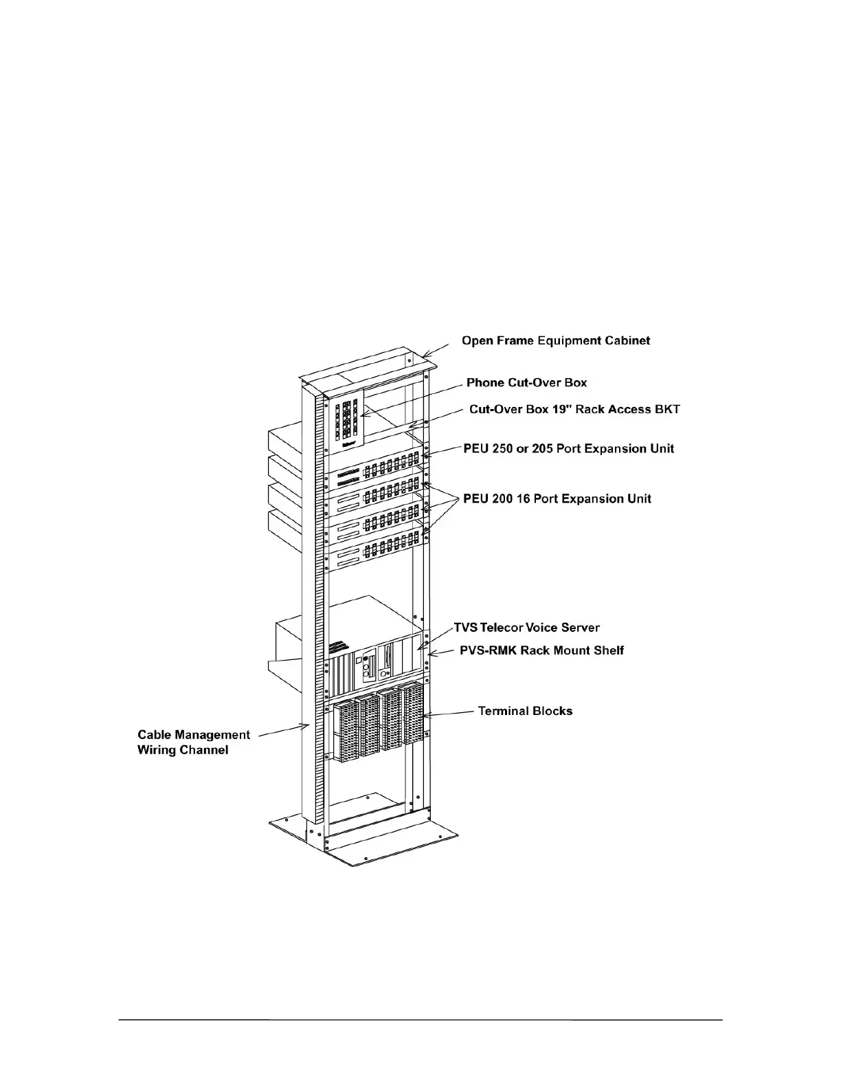
Rack Mount Setup
The Phone Cut-Over Boxes are located at the top of the rack. The PEU-250 or 205 is located
directly below the Cut-Over Box, followed by the PEU-200 units. The CO lines from the Telco
Demarc terminate onto the Cut-Over Boxes. Connections are then made with RJ11 patchcords from
the Cut-Over Box to the CO Ports on the PEU-250 or PEU 205 (see “Connecting the Cut-Over
Box,” page 33). If your installation does not include Cut-Over Boxes, then simply connect the CO
lines to the designated CO ports on the PEU 250 or PEU 205.
Station field wiring and Telco Demarc lines are terminated onto TM-16X3 or TM-8X3 terminal
blocks (see “Terminal Blocks,” page 25). The terminal blocks may be located on the equipment
rack.

Table of Contents