EasyManua.ls Logo

Honeywell Gamewell-FCI E3 Series - 2.5.2.1 Cabinet A2, Backbox Installation

Honeywell Gamewell-FCI E3 Series
190 pages
Print Icon
To Next Page IconTo Next Page
To Next Page IconTo Next Page
To Previous Page IconTo Previous Page
To Previous Page IconTo Previous Page
Loading...
E3 Series Installation/Operation Manual P/N 9000-0574:I 11/04/10 27
Cabinets Installation
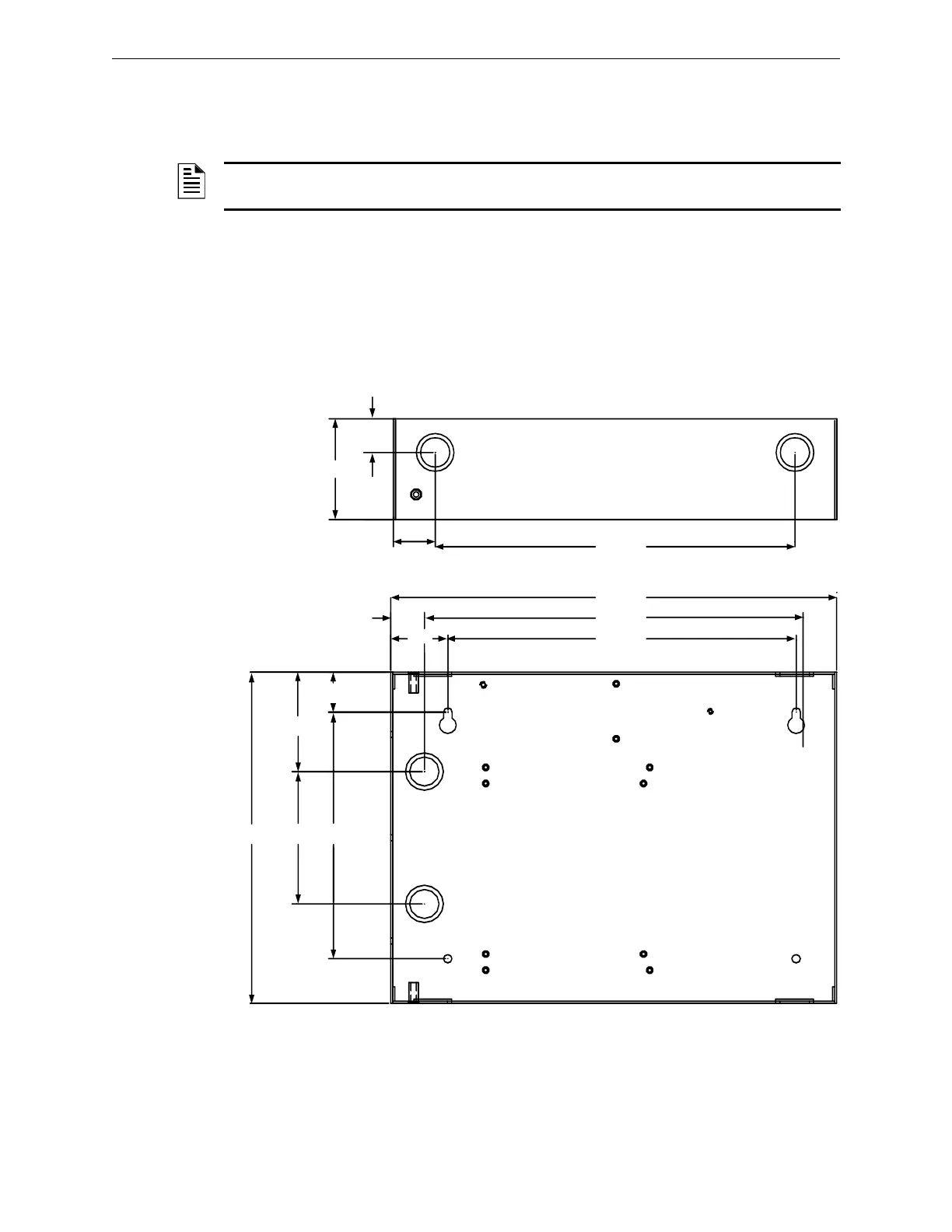
2.5.2.1 Cabinet A2, Backbox Installation
1. Prepare the mounting site by pre-drilling four (4), #10 screws using the dimensions shown in
the figure below. Use four (4), #10 screws.
2. To mount the backbox, secure with two (2), #10 screws in the two-hole mounting pattern as
shown in Locations 1 and 2 of the figure below.
3. Set the backbox over the top, two-hole mounting pattern, and hang the backbox over the two
screw heads.
4. Insert and secure two (2), #10 screws in the two-hole mounting pattern as shown in Locations
3 and 4 of the figure below.
Figure 2.5.2.1.1 Cabinet A2, Backbox Installation
NOTE: If the fasteners are anchored to wallboard, use #10 wall anchors. Mountings to concrete
walls should be backed by plywood to insulate the equipment from possible condensation.
3.00"
1.25"
10.75"
BACKBOX TOP
13.25"
11.25"
10.35"
1.00"
1.70"
1.20"
3.00"
10.00" 4.00" 7.46"
BACKBOX
1
2
3 4

Table of Contents

Other manuals for Honeywell Gamewell-FCI E3 Series

Related product manuals