EasyManua.ls Logo

Honeywell Gamewell-FCI E3 Series - 2.5.6.4 Cabinet B, Backbox Sub-Assembly Installation (Typical)

Honeywell Gamewell-FCI E3 Series
190 pages
Print Icon
To Next Page IconTo Next Page
To Next Page IconTo Next Page
To Previous Page IconTo Previous Page
To Previous Page IconTo Previous Page
Loading...
48 E3 Series Installation/Operation Manual P/N 9000-0574:I 11/04/10
Installation Cabinets
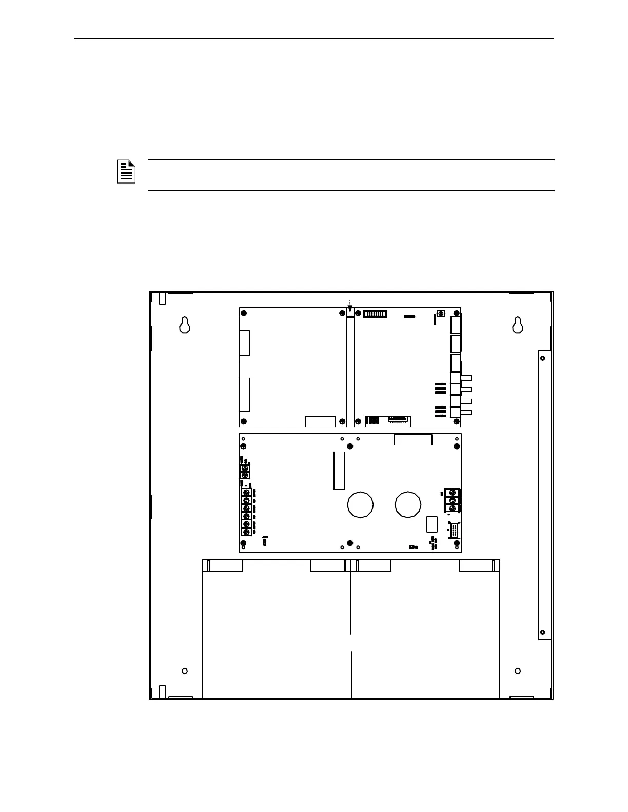
2.5.6.4 Cabinet B, Backbox Sub-Assembly Installation (Typical)
1. Mount the ILI-MB-E3/ILI95-MB-E3 over the standoffs in the backbox and secure the eight,
(8), standoffs, (3/16” hex, #4-40 x 1.0”) in the eight-hole mounting pattern as shown in
Location 1 of Figure 2.5.6.4.2. (Note: PCB orientation).
2. Mount the DACT-E3 and the RPT-E3 on top of the ILI-MB-E3/ILI95-MB-E3 and secure the
eight (8), screws (#4-40 x 3/8”) into the eight (8), standoffs as shown in Location 2 of
Figure 2.5.6.4.2. (Note: PCB orientation).
3. Set the PM-9/PM-9G over the standoffs in the backbox and secure the six (6), screws (#4-40 x
3/8”) in the six-hole mounting pattern as shown in Location 3 of Figure 2.5.6.4.2. (Note: PCB
orientation).
4. Place the batteries in the backbox. The cabinet will accommodate two (2) batteries up to a
maximum of 18 amp/hours capacity.
Figure 2.5.6.4.1 Cabinet B, Backbox Sub-Assembly (Standard View)
NOTE: You can replace the DACT-E3/RPT-E3 with the ANX and mount the ANX on top of the ILI-
MB-E3/ILI95-MB-E3.
BATTERIES
ILI-MB-E3/ILI95-MB-E3
DACT-E3
RPT-E3
PM-9/PM-9G
PM-9/PM-9G PCB

Table of Contents

Other manuals for Honeywell Gamewell-FCI E3 Series

Related product manuals