EasyManua.ls Logo

Honeywell Gamewell-FCI E3 Series - Cabinet C, E3-INX-C Plate, Installation

Honeywell Gamewell-FCI E3 Series
190 pages
Print Icon
To Next Page IconTo Next Page
To Next Page IconTo Next Page
To Previous Page IconTo Previous Page
To Previous Page IconTo Previous Page
Loading...
E3 Series Installation/Operation Manual P/N 9000-0574:I 11/04/10 63
Cabinets Installation
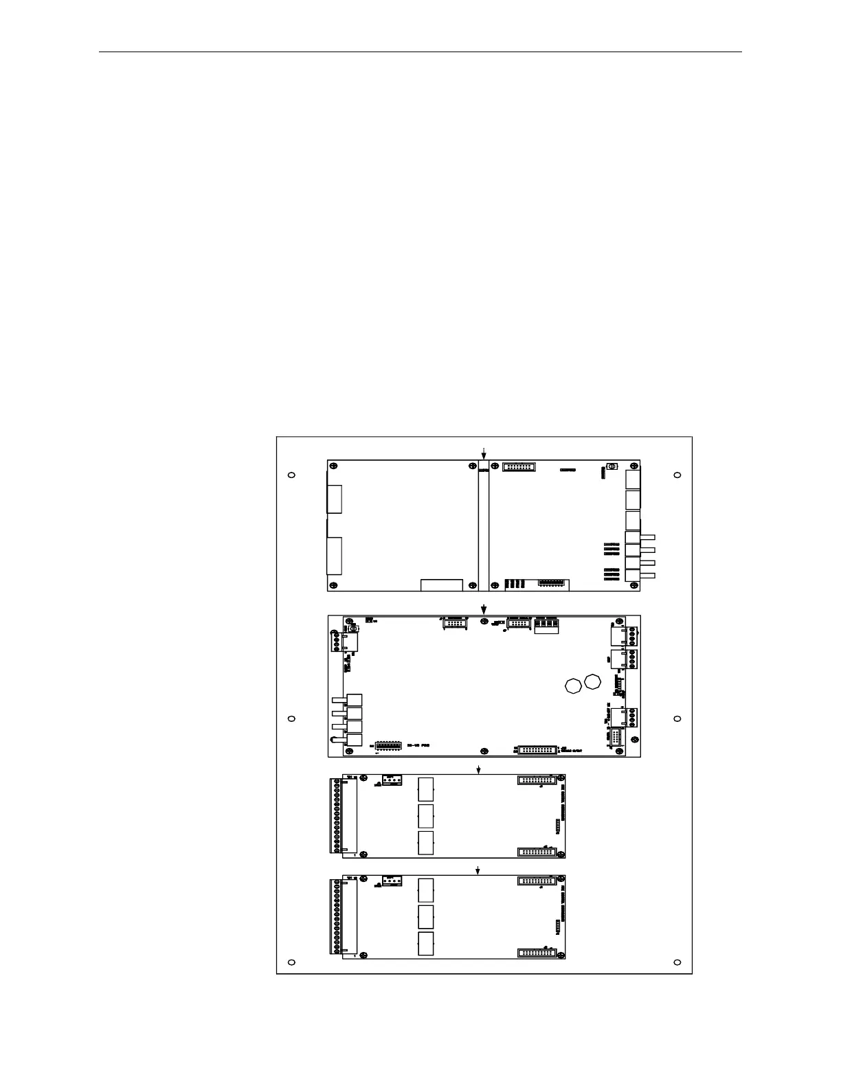
2.5.8.4 Cabinet C, E3-INX-C Plate, Installation
1. Mount the ILI-MB-E3/ILI95-MB-E3/ANX over the standoffs on the E3-INX C plate and
secure with eight (8), standoffs, (3/16” hex, #4-40 x 1”) in the eight-hole mounting pattern as
shown in Location 1 of Figure 2.5.8.4.2.
2. Mount the DACT-E3 and the RPT-E3 on top of the ILI-MB-E3/ILI95-MB-E3/ANX and secure
with eight (8), screws (#4-40 x 1/4”) into the eight (8), standoffs as shown in Location 2 of
Figure 2.5.8.4.2.
3. Mount the PM-9/PM-9G over the standoffs on the E3-INX-C PLATE plate and secure with six
(6), standoffs (1/4” hex, #4-40 x 2 1/4”) in the six-hole mounting pattern as shown in Location
3 of Figure 2.5.8.4.2.
4. Mount the PM-9/PM-9G Adapter Plate on top of the PM-9/PM-9G and secure with six (6),
screws (#4-40 x 1/4) into the six (6), standoffs as shown in Location 4 of Figure 2.5.8.4.2.
5. Mount the INI-VG on the PM-9/PM-9G Adapter Plate and secure with six (6), screws
(#4-40 x 1/4”) as shown in Location 5 of Figure 2.5.8.4.2.
6. Mount two (2), AM-50 Series amplifiers on the E3-INX-C plate and secure with eight (8),
standoffs (3/16” #4-40 x 1 1/4”) in the two (2), four-hole mounting patterns as shown in
Location 6.
7. Mount two (2), AM-50 Series amplifiers on top of the two (2), AM-50 Series amplifiers, and
secure eight (8), screws (#4-40 x 1/4”) into the eight (8), standoffs as shown in Location 7 of
Figure 2.5.8.4.2.
Figure 2.5.8.4.1 Cabinet C, E3-INX C Plate (Standard View)
PM-9/PM-9G
ILI-MB-E3/ILI95-MB-E3/ANX
INI-VG SERIES
DACT-E3 RPT-E3
AM-50 SERIES
AM-50 SERIES
AM-50 SERIES PCB
AM-50 SERIES
AM-50 SERIES
AM-50 SERIES PCB

Table of Contents

Other manuals for Honeywell Gamewell-FCI E3 Series

Related product manuals