EasyManua.ls Logo

Honeywell Gamewell-FCI E3 Series - Cabinet A2, Trim Rings Installation (Optional Accessory)

Honeywell Gamewell-FCI E3 Series
190 pages
Print Icon
To Next Page IconTo Next Page
To Next Page IconTo Next Page
To Previous Page IconTo Previous Page
To Previous Page IconTo Previous Page
Loading...
28 E3 Series Installation/Operation Manual P/N 9000-0574:I 11/04/10
Installation Cabinets
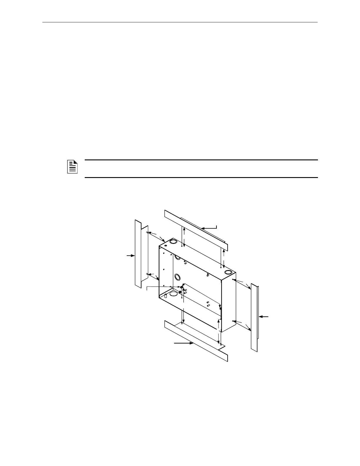
2.5.2.2 Cabinet A2, Trim Rings Installation (Optional Accessory)
1. Insert the Cabinet A2, trim top ring over the top two-hole mounting pattern.
2. Secure with two (2), #6 Hex Kep nuts in the two-hole mounting pattern on the top of the
backbox as shown in Locations 1 and 2 of the figure below.
3. Insert the Cabinet A2, trim bottom ring on the bottom two-hole mounting pattern.
4. Secure with two (2), #6 Hex Kep nuts in the two-hole mounting pattern on the bottom of the
backbox as shown in Locations 3 and 4 of the figure below.
5. Insert the Cabinet A2, trim left ring on the left side of the two-hole mounting pattern.
6. Secure with two (2), #6 Hex Kep nuts in the two-hole mounting pattern on the left side of the
backbox as shown in Locations 5 and 6 of the figure below.
7. Insert the Cabinet A2, trim right ring on the right side of the two-hole mounting pattern.
8. Secure with two (2), #6 Hex Kep nuts in the two-hole mounting pattern on the right side of the
backbox as shown in Locations 7 and 8 of the figure below.
For information on flush-mounting, refer to the E3 Series Cabinet Trim Rings Installation
Instructions, P/N 9001-0058.
Figure 2.5.2.2.1 Cabinet A2, Trim Rings Installation
NOTE: Use the Trim Ring Hardware Kit provided. The trim top/bottom and trim left/right rings are
interchangeable.
6
8
NOTE:
#6 HEX,
KEPS NUTS,
(8 PLACES)
E3 Cabinet A2,
Left Trim Ring
E3 Cabinet A2,
Right Trim Ring
E3 Cabinet A2,
Top Trim Ring
E3 Cabinet A2,
Bottom Trim Ring
3
1
2
4
5
7

Table of Contents

Other manuals for Honeywell Gamewell-FCI E3 Series

Related product manuals