EasyManua.ls Logo

IAI TB-02 - Page 240

Default Icon
420 pages
Print Icon
To Next Page IconTo Next Page
To Next Page IconTo Next Page
To Previous Page IconTo Previous Page
To Previous Page IconTo Previous Page
Loading...
4. Operation of SEP Related Controllers
228
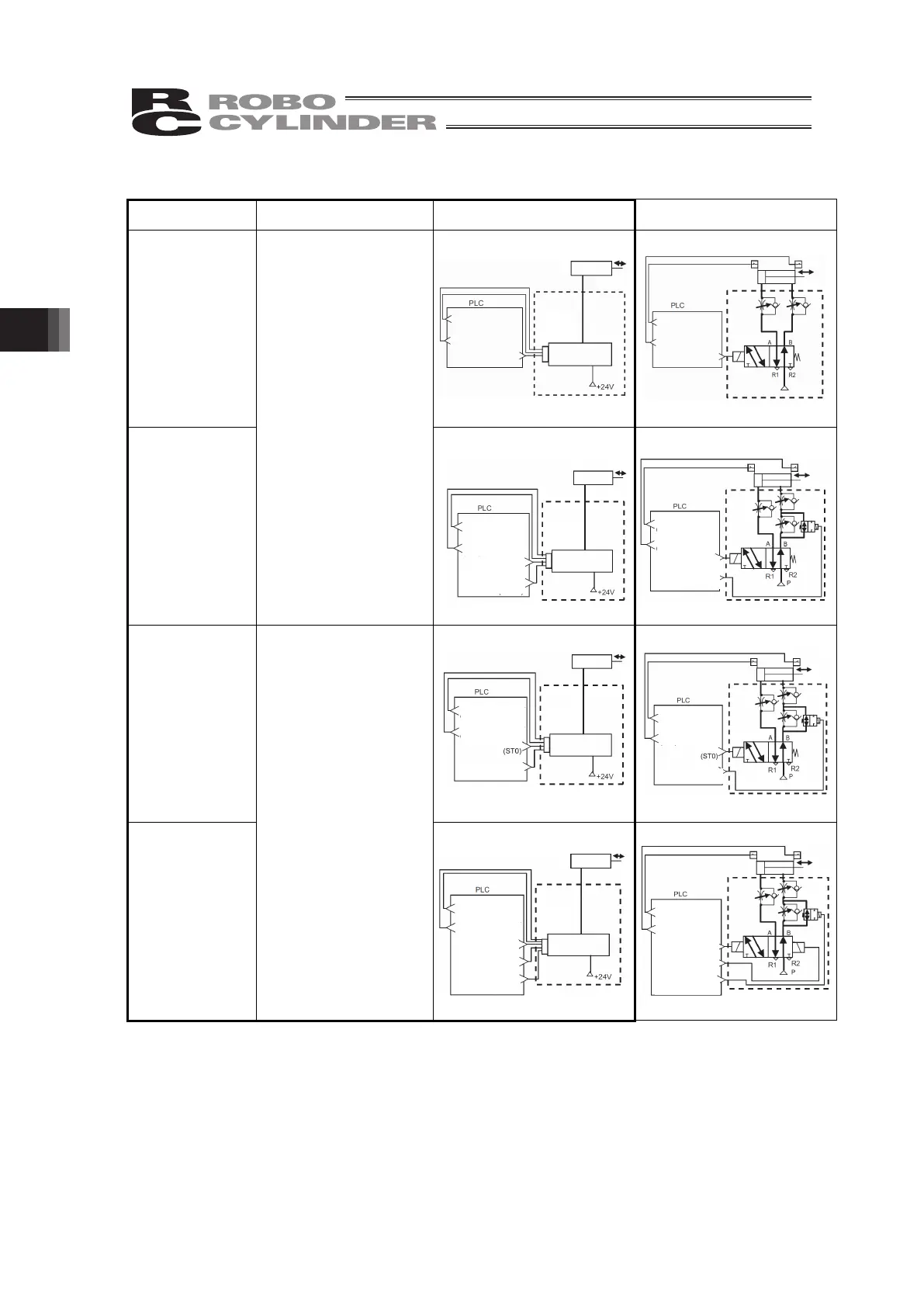
Operation pattern
Equivalent air cylinder circuits are shown for your reference.
Operation pattern Description
Motorized cylinder connection
method
Air cylinder circuit (reference)
PIO pattern 0
Single solenoid type
(Standard movement
between 2 points)
The actuator can be moved
between two points using the
same control you normally
use with an air cylinder.
The target position (forward
end, backward end) can be
set.
The travel speed and
acceleration/deceleration can
be specified.
Push-motion operation can
also be performed.
PIO pattern 0
Double solenoid type
(Standard movement
between 2 points)
PIO pattern 1
Single solenoid type
(Movement between
2 points)
(Change travel
speed)
The actuator can be moved
between two points using the
same control you normally
use with an air cylinder.
The speed can be changed
during movement.
The target position (forward
end, backward end) can be
set.
The travel speed and
acceleration/deceleration can
be specified.
Push-motion operation can
also be performed.
PIO pattern 1
Double solenoid type
(Movement between
2 points)
(Change travel
speed)
(Note) The air cylinder circuits are drawn with signal symbols corresponding to those used by
ASEP/PSEP/DSEP/MSEP controllers.
For details on signal symbols, refer to your “ASEP/PSEP/DSEP Instruction Manual”,
“MSEP controller Instruction Manual”.
Backward end
position detection
signal (LS0)
Forward end position
detection signal (LS1)
Forward end
movement signal (ST1)
Backward end
movement signal (ST0)
Motorized cylinder
Dedicated
cable
Backward end
position detection
signal (LS0)
Forward end position
detection signal (LS1)
Forward end
movement signal (ST1)
Backward end
movement signal (ST0)
A
ir cylinde
r
Solenoid
Solenoid
(Air)
Backward end
position detection
signal (LS0)
Forward end position
detection signal (LS1)
Travel speed switching
signal (SPDC)
Movement signal
Backward end
position detection
signal (LS0)
Forward end position
detection signal (LS1)
Travel speed switching
signal (SPDC)
Movement signal
A
i
r
cylinder
Motorized cylinder
Dedicated
cable
Motorized cylinder
Dedicated
cable
Solenoid
Solenoid
(Air)
(Air)
A
ir cylinde
r
Solenoid
Backward end
position detection
signal (LS0)
Forward end position
detection signal (LS1)
Forward end
movement signal (ST1)
Backward end
movement signal (ST0)
Travel speed switching
signal (SPDC)
Backward end
position detection
signal (LS0)
Forward end position
detection signal (LS1)
Forward end
movement signal (ST1)
Backward end
movement signal (ST0)
Travel speed switching
signal (SPDC)
A
ir cylinde
r
Spring
Solenoid
P (Air)
Backward end
position detection
signal (LS0)
Forward end position
detection signal (LS1)
Movement signal
(ST0)
Backward end
position detection
signal (LS0)
Forward end position
detection signal (LS1)
Movement signal
(ST0)
Motorized cylinder
Dedicated
cable
Spring
ASEP,
PSEP,
DSEP,
MSEP
ASEP,
PSEP,
DSEP,
MSEP
ASEP,
PSEP,
DSEP,
MSEP
ASEP,
PSEP,
DSEP,
MSEP

Table of Contents

Other manuals for IAI TB-02