EasyManua.ls Logo

Mazda 2002 6 - Steering Wheel and Column Removal;Installation

Mazda 2002 6
1248 pages
Print Icon
To Next Page IconTo Next Page
To Next Page IconTo Next Page
To Previous Page IconTo Previous Page
To Previous Page IconTo Previous Page
Loading...
ENGINE SPEED SENSING POWER STEERING
N7
N
STEERING WHEEL AND COLUMN REMOVAL/INSTALLATION
A6E661432010W02
Warning
Handling the air bag module improperly can accidentally deploy the air bag module, which may
seriously injure you. Read AIR BAG SYSTEM WARNINGS before handling the air bag module. (See
T117 SERVICE WARNINGS.)
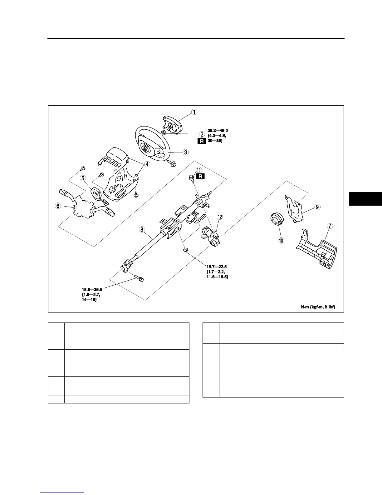
1. Remove in the order indicated in the table.
2. Install in the reverse order of removal.
3.
.
A6E0612W017
1 Air bag module
(See T120 DRIVER-SIDE AIR BAG MODULE
REMOVAL/INSTALLATION)
2 Locknut
3 Steering wheel
(See N8 Steering Wheel Removal Note)
(See N8 Steering Wheel Installation Note)
4 Column cover
5 Clock spring
(See T125 CLOCK SPRING REMOVAL/
INSTALLATION)
6 Combination switch
7 Lower panel
8 Steering shaft
(See N8 Steering Shaft Installation Note)
9 Joint cover
10 Dust cover
11 Steering lock mounting bolts
(See N8 Steering Lock Mounting Bolts Removal
Note)
(See N8 Steering Lock Mounting Bolts Installation
Note)
12 Steering lock component

Table of Contents