EasyManua.ls Logo

Siemens SIMATIC S7-1200 - Page 1461

Siemens SIMATIC S7-1200
1614 pages
To Next Page IconTo Next Page
To Next Page IconTo Next Page
To Previous Page IconTo Previous Page
To Previous Page IconTo Previous Page
Loading...
Technical specifications
A.10 Analog signal modules (SMs)
S7-1200 Programmable controller
System Manual, V4.2, 09/2016, A5E02486680-AK
1461
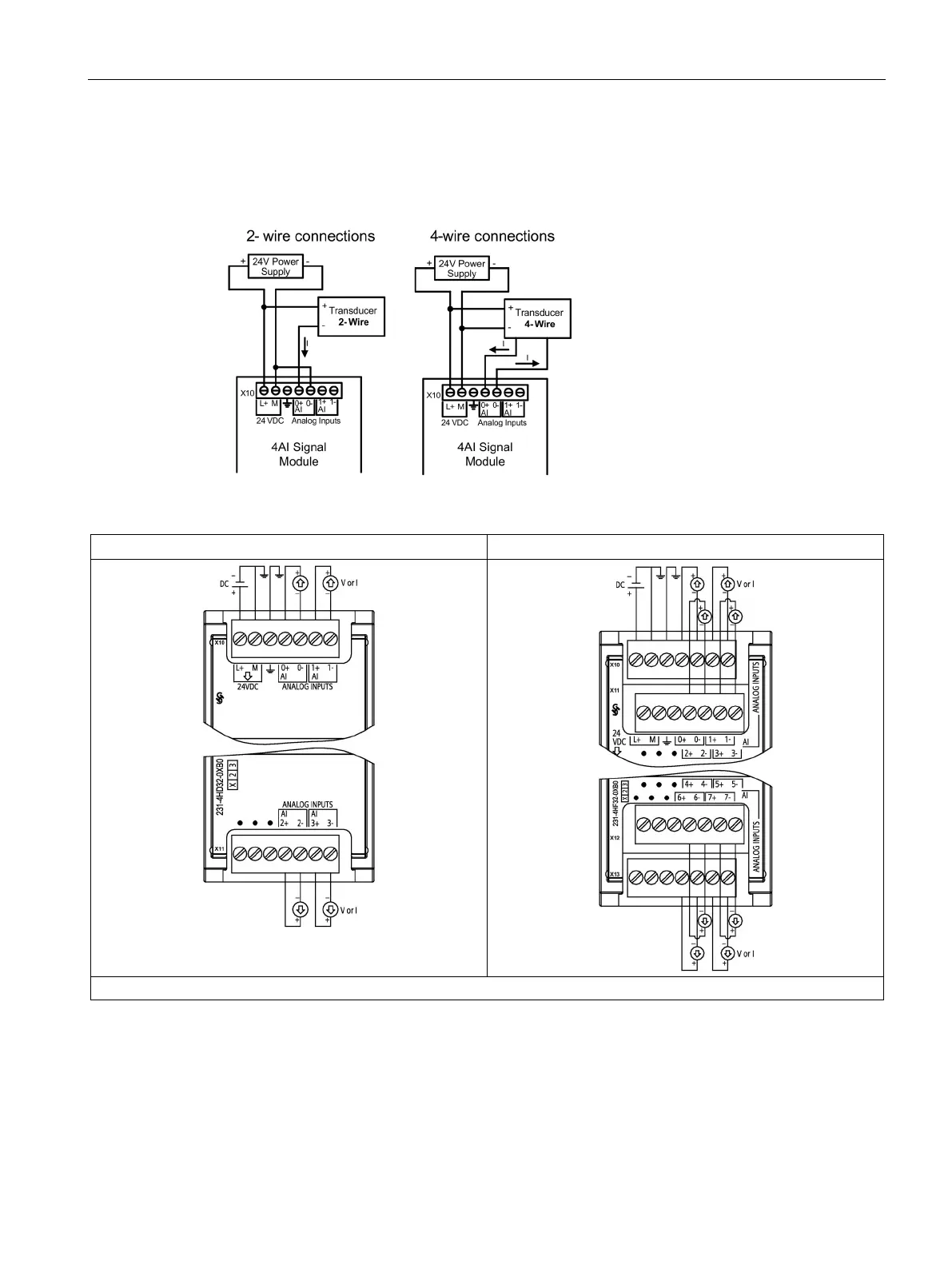
SM 1231 wiring current transducers
Wiring current transducers are available as 2-wire transducers and 4-wire transducers as
shown below.
Table A- 140 Wiring diagrams for the analog input SMs
SM 1231 AI 4 x 13 bit (6ES7231-4HD32-0XB0)
SM 1231 AI 8 x 13 bit (6ES7231-4HF32-0XB0)
Note: Connectors must be gold. See Appendix C, Spare Parts for article number.

Table of Contents

Other manuals for Siemens SIMATIC S7-1200

Related product manuals