EasyManua.ls Logo

ESAB CROSSBOW - Shape 11: TAB RECTANGLE

ESAB CROSSBOW
232 pages
Print Icon
To Next Page IconTo Next Page
To Next Page IconTo Next Page
To Previous Page IconTo Previous Page
To Previous Page IconTo Previous Page
Loading...
ESAB Cutting Systems
CROSSBOW Page 201
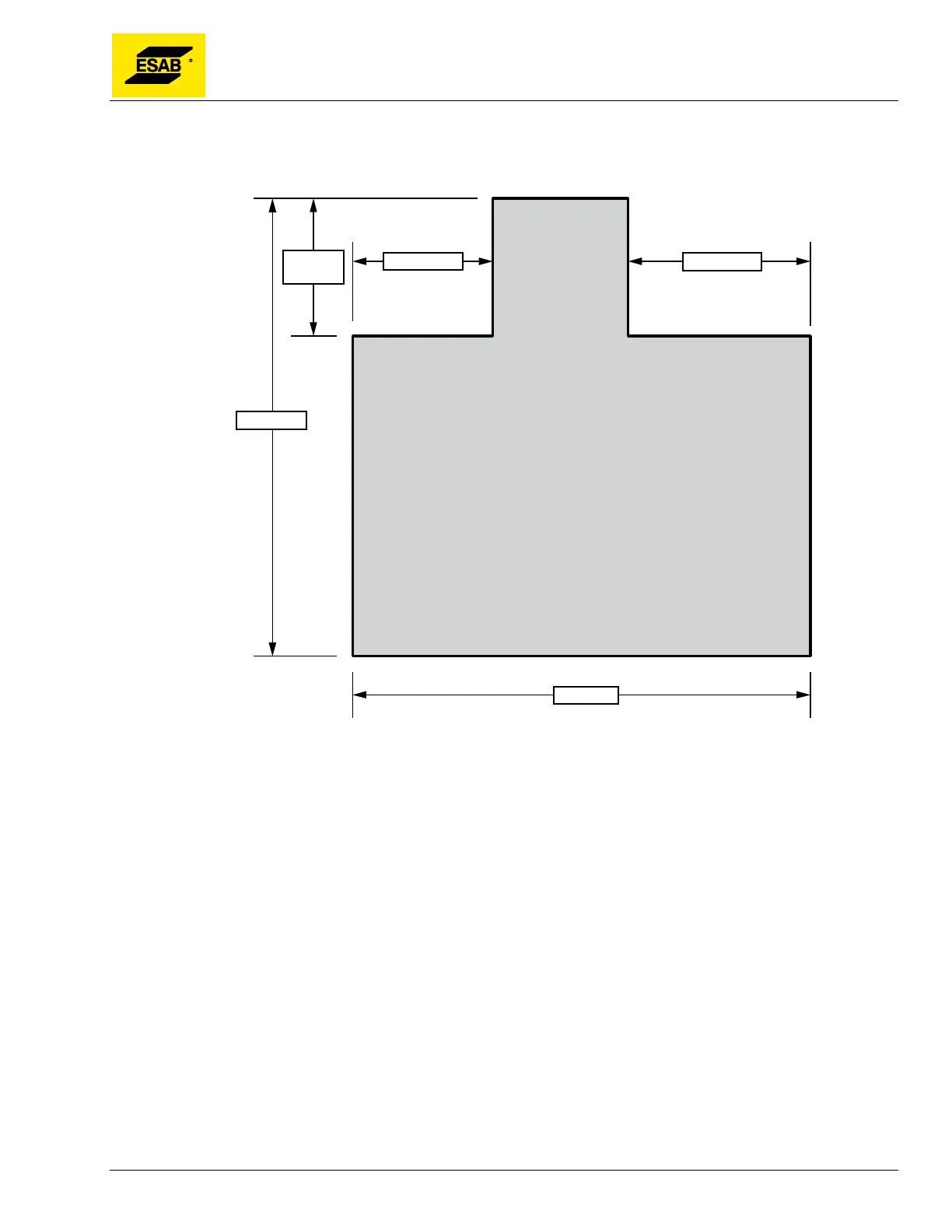
Shape 11: TAB RECTANGLE
WIDTH
HEIGHT
TAB
LENGTH
RGT-SIDE
LFT-SIDE

Table of Contents

Related product manuals