EasyManua.ls Logo

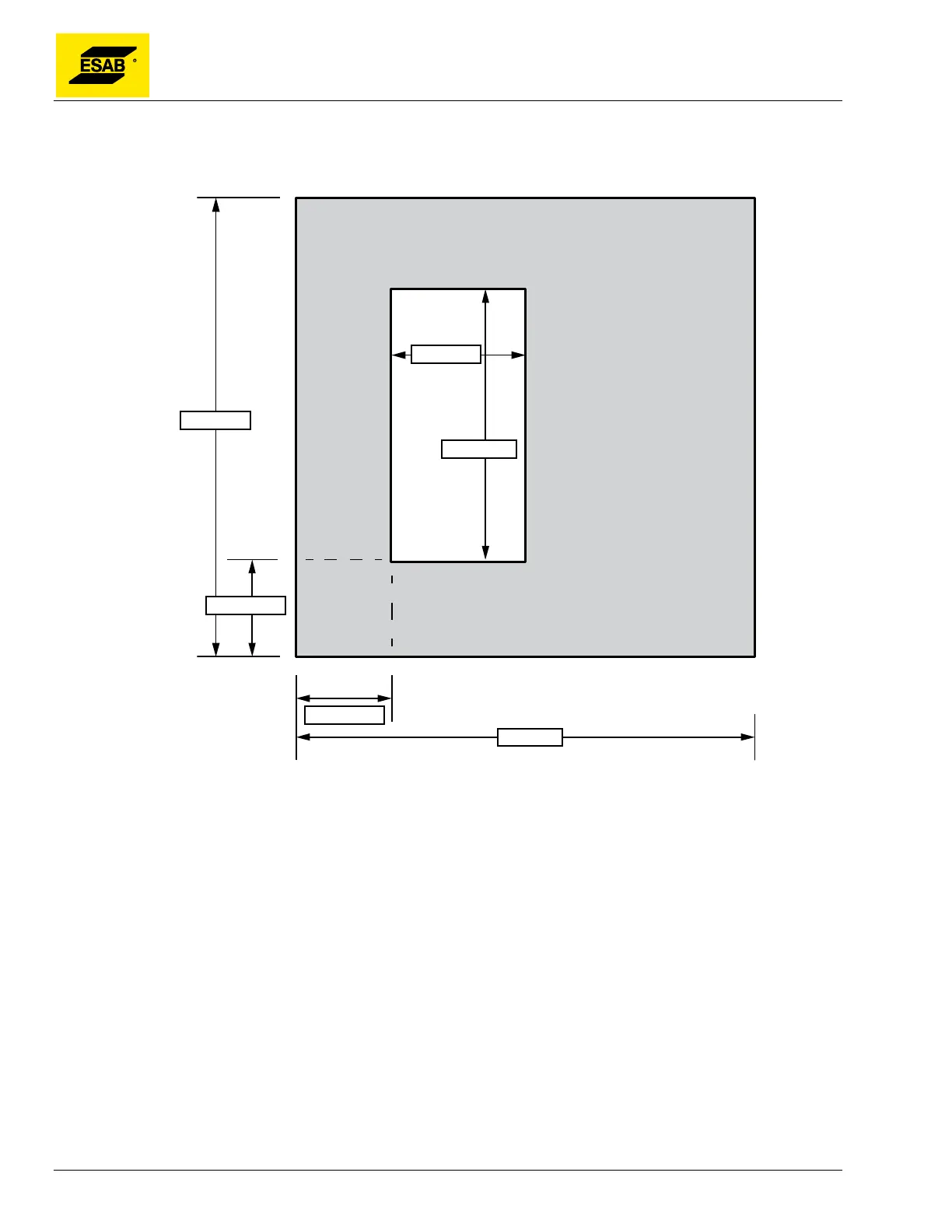
ESAB CROSSBOW - Shape 16: RECT. CUTOUT

ESAB CROSSBOW
232 pages
Print Icon
To Next Page IconTo Next Page
To Next Page IconTo Next Page
To Previous Page IconTo Previous Page
To Previous Page IconTo Previous Page
Loading...
ESAB Cutting Systems
CROSSBOW Page 206
Shape 16: RECT. CUTOUT
WIDTH
HEIGHT
INNER W
INNER H
LFT-SIDE
OFFSET-B

Table of Contents

Related product manuals