EasyManua.ls Logo

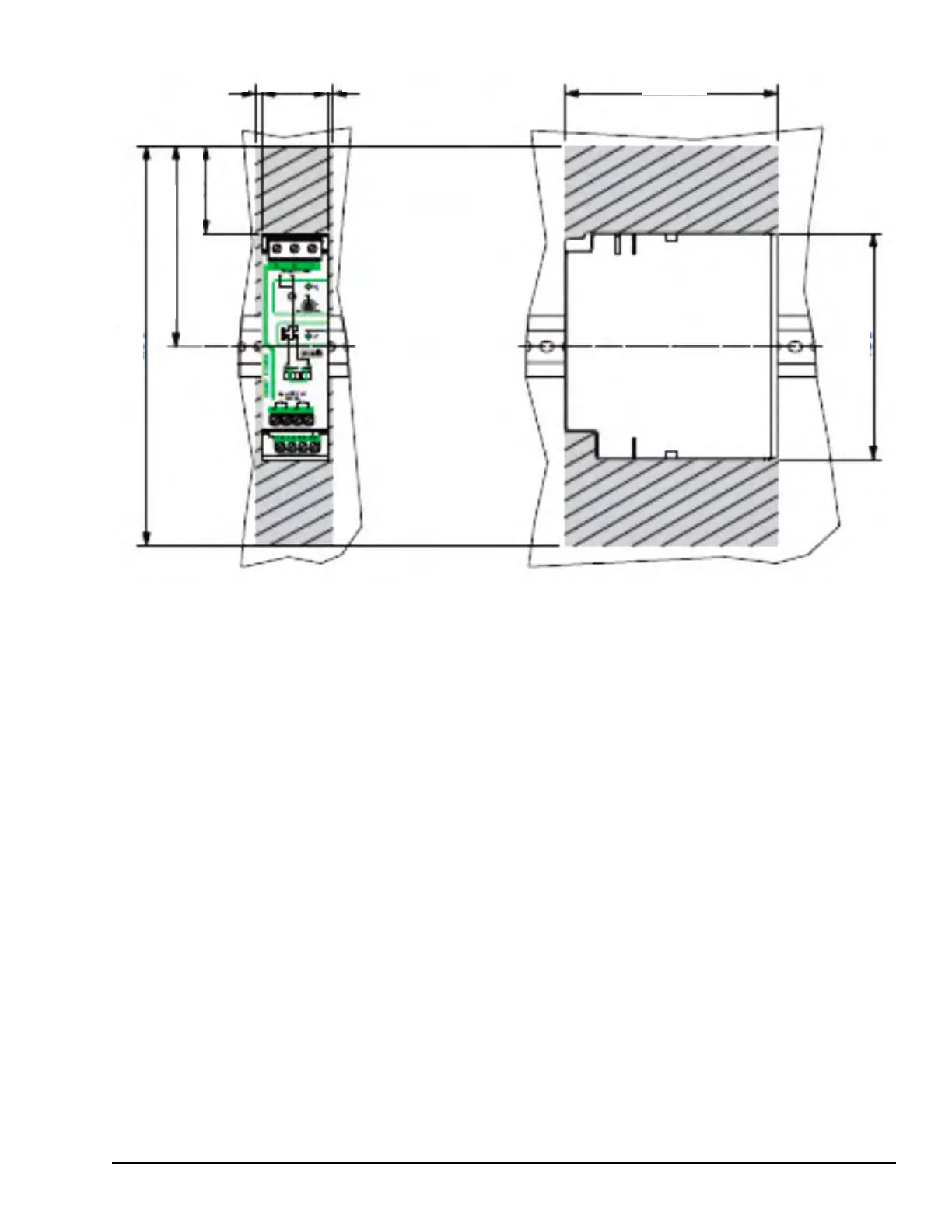
GE Mark VIeS - 342 A3648 PF40 A28 C FET-OR Module Dimensions

GE Mark VIeS
486 pages
Print Icon
To Next Page IconTo Next Page
To Next Page IconTo Next Page
To Previous Page IconTo Previous Page
To Previous Page IconTo Previous Page
Loading...
38 mm
(1.50 in)
5 mm
(0.20 in)
122 mm
(4.80 in)
130 mm (5.12 in)
230 mm (9.06 in)
115 mm (4.53 in)
50 mm (1.97 in)
5 mm
(0.20 in)
342A3648PF40A28C FET-OR Module Dimensions
PDM Power Distribution Modules GEH-6855_Vol_II System Guide 435
Public Information

Table of Contents

Related product manuals