EasyManua.ls Logo

NewTek TriCaster Mini - Section 22.12 Tri Caster 8000 and 860

NewTek TriCaster Mini
522 pages
Print Icon
To Next Page IconTo Next Page
To Next Page IconTo Next Page
To Previous Page IconTo Previous Page
To Previous Page IconTo Previous Page
Loading...
Page | 491
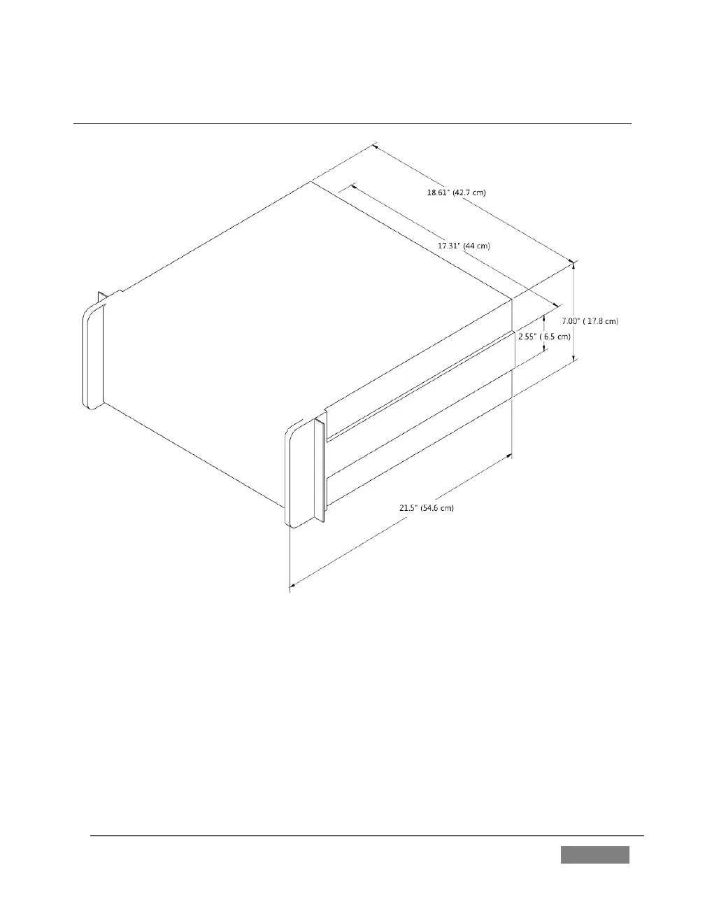
SECTION 22.12 TRICASTER 8000 AND 860
FIGURE 411
TriCaster 8000 and TriCaster 860 are encased in similar 4 Rack Unit (RU) chassis
supplied with ‘ears’ designed to permit mounting in standard 19 rack architecture.
As these units weigh in at about 40 pounds (>18 KG), we strongly encourage you to
provide a shelf or rear support to distribute the load more evenly if rack-mounting is
planned.

Table of Contents

Other manuals for NewTek TriCaster Mini

Related product manuals