EasyManua.ls Logo

Crown RC 5500 series - Lower Circuit

Crown RC 5500 series
691 pages
To Next Page IconTo Next Page
To Next Page IconTo Next Page
To Previous Page IconTo Previous Page
To Previous Page IconTo Previous Page
Loading...
HYDRAULIC
Hydraulic Circuits
86
M2.0-1055-006
Pump motor speed will be in proportion to the raise
command. The pump motor contains an internal sen-
sor bearing, allowing closed loop speed control of the
pump motor. This simply means that if the multitask
handle is lifted slightly, SVH and SVBy will shift fully,
but the pump motor will run at a low rpm, and P1 will
deliver a low volume of oil flow to the carriage and mast
cylinders. As the multitask handle is raised more, pump
motor speed will increase, increasing the volume of oil
flow supplied to the cylinders.
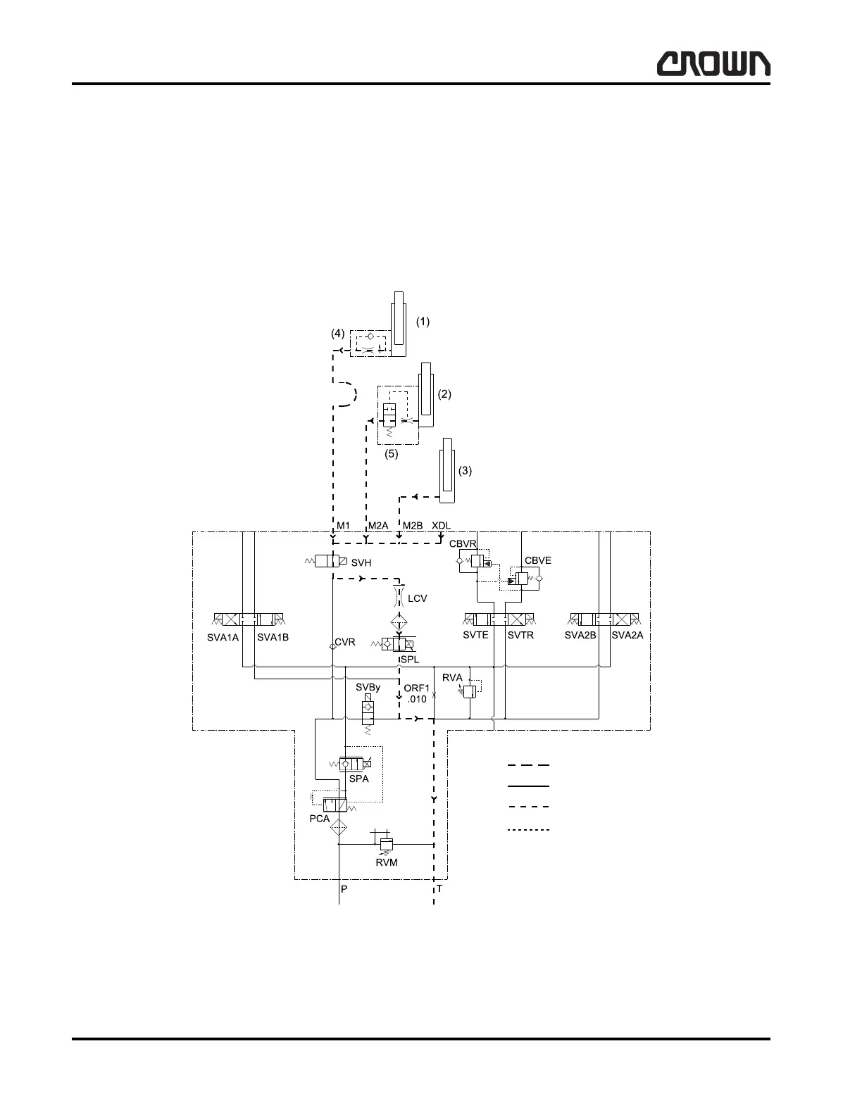
Lower Circuit
Refer to Figure 15858. Pressing down on the multitask
handle will change the voltage across POT 2 creating
a Lower command input to the truck's electronic control
system. The system will energize the coil of SVH and
proportionally drive (energize) the coil SPL which sets
the lowering speed.
Figure 15858
1 Carriage Cylinder 4 Flow Control Valve
2 Left Mast Cylinder 5 Velocity Fuse
3 Right Mast Cylinder
Suction
Return
Relief
Pressure
Crown 2007 PF15675-6

Table of Contents

Related product manuals