EasyManua.ls Logo

Crown RC 5500 series - Page 308

Crown RC 5500 series
691 pages
To Next Page IconTo Next Page
To Next Page IconTo Next Page
To Previous Page IconTo Previous Page
To Previous Page IconTo Previous Page
Loading...
291
M4.8-1055-081
03 Rev. 10/09
ELECTRICAL
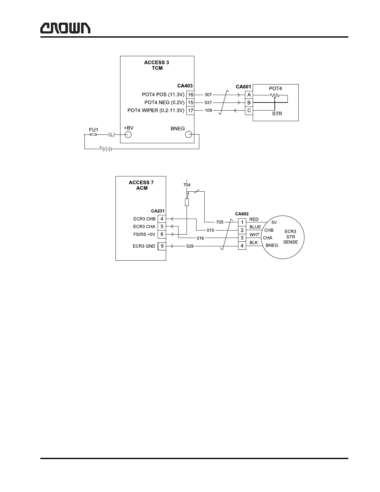
Event Code 745
Figure 16378-01
Crown 2007 PF15665-81 Rev. 10/09

Table of Contents

Related product manuals