EasyManua.ls Logo

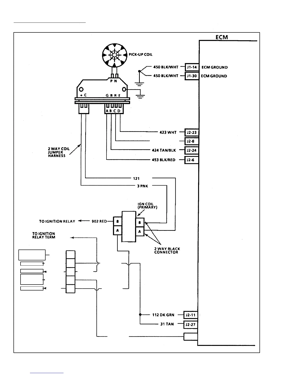
Mercury 305 CID - Throttle Body Injection Wiring Diagram (Chart 3 of 4)

Mercury 305 CID
967 pages
To Next Page IconTo Next Page
To Next Page IconTo Next Page
To Previous Page IconTo Previous Page
To Previous Page IconTo Previous Page
Loading...
EST MODULE
ELECTRONIC SPARK TIMING (EST)
DIST. REFERENCE “HIGH”
B A
BYPASS
DIST. REFERENCE “LOW”
TAN/BLU
BLU/TAN
PUR
GRY
3 PNK
121 TAN
121 WHT
931 BRN
J1-6
D
C
B
A
IGNITION CONTROL
IC MODULE
86
430 PUR/WHT
BRN
TO BUZZER
TO IGN
TO AUDIO
WARNING
SWITCHES
TO TACH
TO BUZZER
(COOLANT OVERTEMP)
TO BUZZER
(AUDIO WARNING SWITCHES)
TO KNOCK SEN-
SOR (BLACK
SCORPION ONLY)
FROM AUDIO WARNING
SWITCHES
90-823225--1 10965E-48 - ELECTRONIC FUEL INJECTION (MULTI-PORT AND THROTTLE BODY)
Throttle Body Injection Wiring Diagram (Chart 3 Of 4)

Table of Contents

Related product manuals