EasyManua.ls Logo

wsm M7040 - 5 Power Train for 4 Wd; 4 Wd Hydraulic Clutch Section

wsm M7040
588 pages
Print Icon
To Next Page IconTo Next Page
To Next Page IconTo Next Page
To Previous Page IconTo Previous Page
To Previous Page IconTo Previous Page
Loading...
TRANSMISSION
M6040, M7040, WSM
3-M18
5. POWER TRAIN FOR 4WD
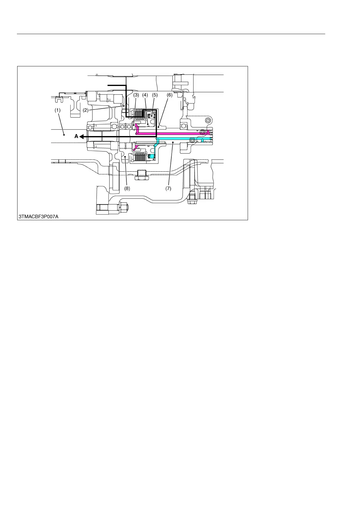
[1] 4WD HYDRAULIC CLUTCH SECTION
The 4WD clutch is controlled by the solenoid valve and the hydraulic flow.
When the 4WD switch turn on, the front wheel drive (4WD) is engaged. When it is pushed once more, the 2-wheel
drive is engaged. The power train are available as follows.
2-wheel drive (4WD switch is turned to "OFF")
The hydraulic system pressure is fed to between the neutral cover (3) and 4WD piston (4) at 4WD switch is turned
to "OFF" and hydraulic pressure does not come from 4WD solenoid valve to actuate the 4WD piston (4). So, the
hydraulic system pressure actuate the 4WD piston (4) to the neutral position and power is not transmitted from
35T gear (2) to DT propeller shaft (1).
When both brake pedals are depressed together while driving in 2WD mode, 2-brake switches operate the 4WD
solenoid valve and activate to the 4WD mode. 4WD mode activate the 4WD braking system and the 4WD
indicator lights up.
4-wheel drive (4WD switch is turned to "ON")
The 4WD solenoid valve switches and supply the hydraulic pressure to actuate the 4WD piston (4) to engage the
clutch pack together with the spring (5) tension force.
The power is transmitted as follow.
35T Gear (2) 32T Gear (8) Clutch Body (6) 4WD Shaft (7) DT Propeller Shaft (1).
Engine stop
The 4WD piston (4) engage to 4WD mode by spring (5) tension force.
9Y1210143TRM0017US0
(1) DT Propeller Shaft
(2) 35T Gear
(3) Neutral Cover
(4) 4WD Piston
(5) Spring
(6) Clutch Body
(7) 4WD Shaft
(8) 32T Gear
A: 4WD
KiSC issued 07, 2012 A

Table of Contents

Related product manuals