EasyManua.ls Logo

wsm M7040 - Page 439

wsm M7040
588 pages
Print Icon
To Next Page IconTo Next Page
To Next Page IconTo Next Page
To Previous Page IconTo Previous Page
To Previous Page IconTo Previous Page
Loading...
HYDRAULIC SYSTEM
M6040, M7040, WSM
8-S33
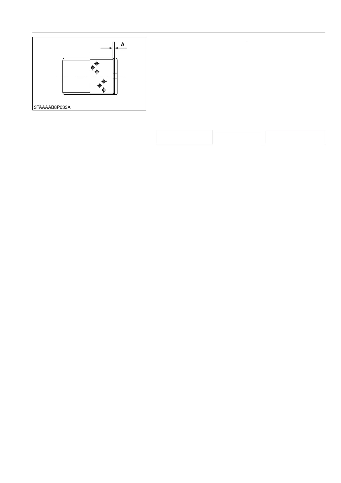
Torsion Bar and Top Link bracket
1. Visually inspect the DX bushings for signs of wear or damage.
(The DX bushing tends to show concentrated wear.)
2. If the DX bushing is worn beyond the alloy portion "A", replace
it.
(When installing)
When press-fitting a new bushing, apply transmission fluid to
the bushing press in position.
When press-fitting a new bushing of top link bracket, the seam
of bushing face to rear.
When press-fitting a new bushing of torsion bar, the hole of
bushing face lower to align with grease gallery.
(Reference)
9Y1210143HYS0040US0
Lift arm bushing Alloy thickness "A"
0.57 mm
0.0224 in.
A: Alloy Thickness
KiSC issued 07, 2012 A

Table of Contents

Related product manuals